Fristående villa till salu i Jávea

Property ID: DAI-Di3018

€2,600,000

3,988 €/m2


652
3
beds
3
baths
1200
plot

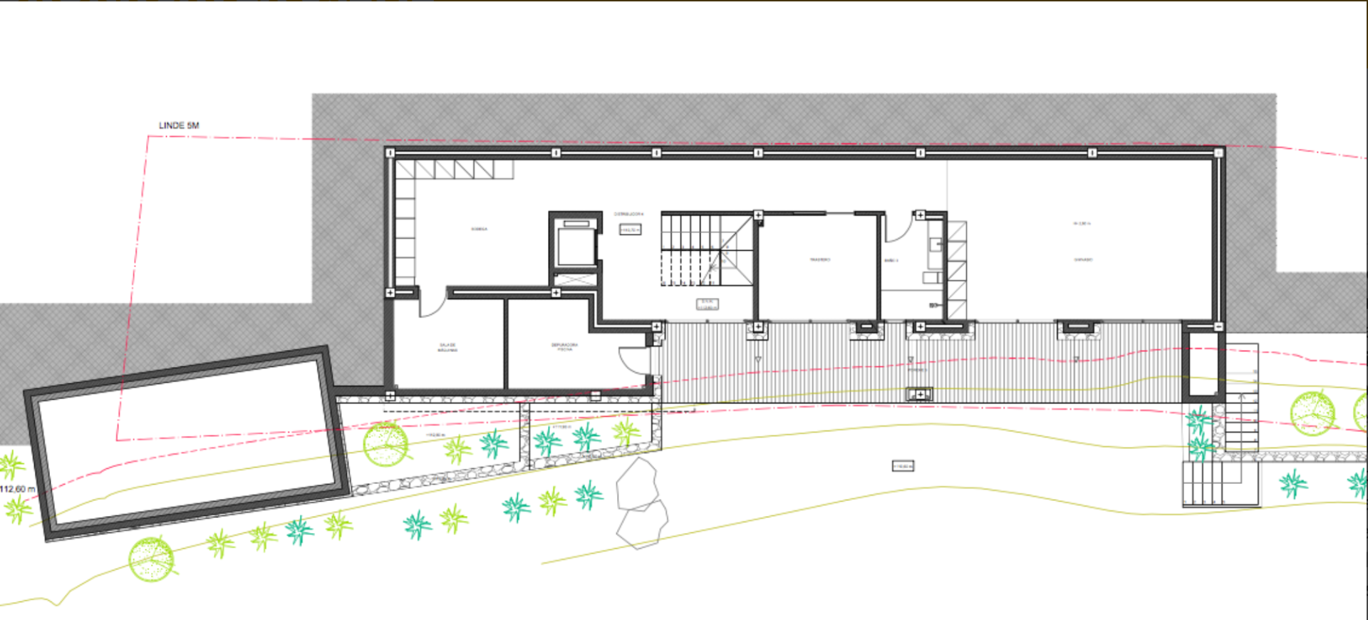
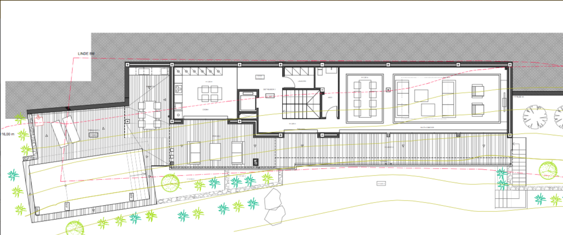
Luxury Villa Project For Sale in Javea - Sea Views This spacious and modern luxury villa will begin construction in early 2020 on a large plot (1200m) which is fully south facing in the most sought-after area of Javea, La Corona. From this privileged location you can enjoy amazing views from the port to Cap Prim, the Cumbre Del Sol to la Ermita Santa Lucia. It will comprise of two double bedrooms, a family bathroom, guest W.C. and a master bedroom with en-suite as well as a grand lounge, separate dining room and a state of the art kitchen. There will also be further rooms which can be modified to the buyers wishes, such as a gym, sauna or cinema room. This villa will also have the latest in technology to control all the systems in the house.[IW]

Funktioner

Features

  • Gym
  • Bastu

Setting

  • Nära till havet
  • Nära småbåtshamn

Views

  • Havsutsikt

Beläget i

Prisvärdhet

Beräkna dina månatliga bolånebetalningar

Din beräknade månadsbetalning

Bli förkvalificerad

Inköpskostnader

Vår kostnadskalkylator ger en uppskattning av alla kostnader som är involverade i att köpa ett hus i Spanien. Använd dessa siffror endast som en riktlinje: de faktiska siffrorna kommer att variera beroende på fastighetens läge och vilken bank du väljer, bland andra faktorer. Till summan måste du lägga till dina bolånebetalningar och comisión de apertura om din bank debiterar det.

Totala utgifter

Du kanske gillar dessa fastigheter också