
5,592 €/m2
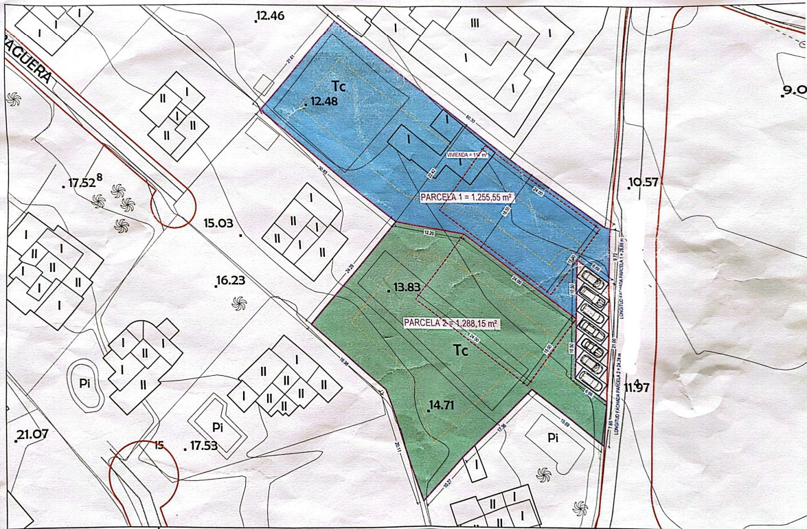
Plot of 2,600 m2 with a house and the possibility of dividing it into two buildable plots
This plot is located only a short distance from the sandy beach of Jávea and offers an excellent investment opportunity. The plot can be perfectly divided into two independent buildable plots of approximately 1,300 m2 each, suitable for building two luxury villas.
Currently, the plot contains a single-story villa with a built area of 152 m². The property features a living room with an open kitchen, a second living-dining room with a closed kitchen, three bedrooms, two bathrooms, and a patio with a storage room.
This plot is within walking distance of the sandy beach of Jávea and enjoys an excellent location close to all amenities. Supermarkets, restaurants, medical offices, sports facilities, and other daily necessities are all within a short distance. This location combines privacy with the convenience of a central setting.
Beläget i
Prisvärdhet
Beräkna dina månatliga bolånebetalningar
Din beräknade månadsbetalning
Bli förkvalificeradInköpskostnader
Vår kostnadskalkylator ger en uppskattning av alla kostnader som är involverade i att köpa ett hus i Spanien. Använd dessa siffror endast som en riktlinje: de faktiska siffrorna kommer att variera beroende på fastighetens läge och vilken bank du väljer, bland andra faktorer. Till summan måste du lägga till dina bolånebetalningar och comisión de apertura om din bank debiterar det.