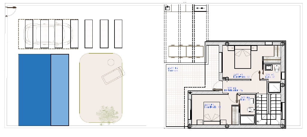
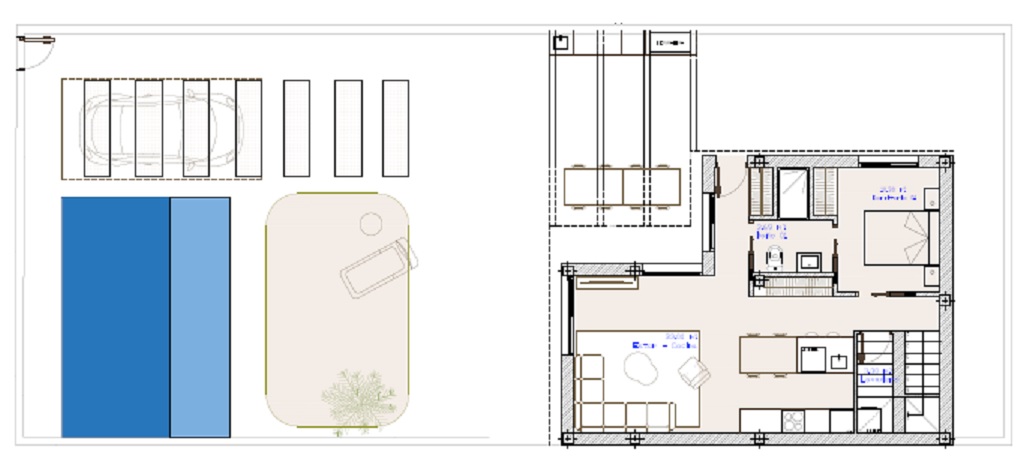
Fristående villa till salu i San Pedro Del Pinatar

Property ID: WVS-WV2520

€499,950

4,000 €/m2


125
3
beds
3
baths
250
plot

fläckfritt skick, nybyggt, nära till strand, nära staden, lugnt läge, ny utveckling, nära till butiker, nära golf, nära till alla bekvämligheter, trädgård, terrass, olika terrasser, soliga terrasser, parkering, parkering off-road, privat pool, nära till skolor, tillgängligt för funktionshindrade, nära vårdanläggningar, bostadsområde, modern, kustlig, nära till flygplats, nära restauranger

Funktioner

Features

  • Privat terrass
  • Handikappanpassat

Parking

  • Privat parkering

Pool

  • Private pool

Setting

  • Nära till havet
  • shanty-house-village-1
    Nära till stan
  • Nära till affärer
  • Nära till golf
  • Nära skolor

Beläget i

Prisvärdhet

Beräkna dina månatliga bolånebetalningar

Din beräknade månadsbetalning

Bli förkvalificerad

Inköpskostnader

Vår kostnadskalkylator ger en uppskattning av alla kostnader som är involverade i att köpa ett hus i Spanien. Använd dessa siffror endast som en riktlinje: de faktiska siffrorna kommer att variera beroende på fastighetens läge och vilken bank du väljer, bland andra faktorer. Till summan måste du lägga till dina bolånebetalningar och comisión de apertura om din bank debiterar det.

Totala utgifter

Du kanske gillar dessa fastigheter också