Fristående villa till salu i Calpe

Property ID: VPO-NE1442V

€975,000

4,665 €/m2


209
3
beds
3
baths
1000
plot

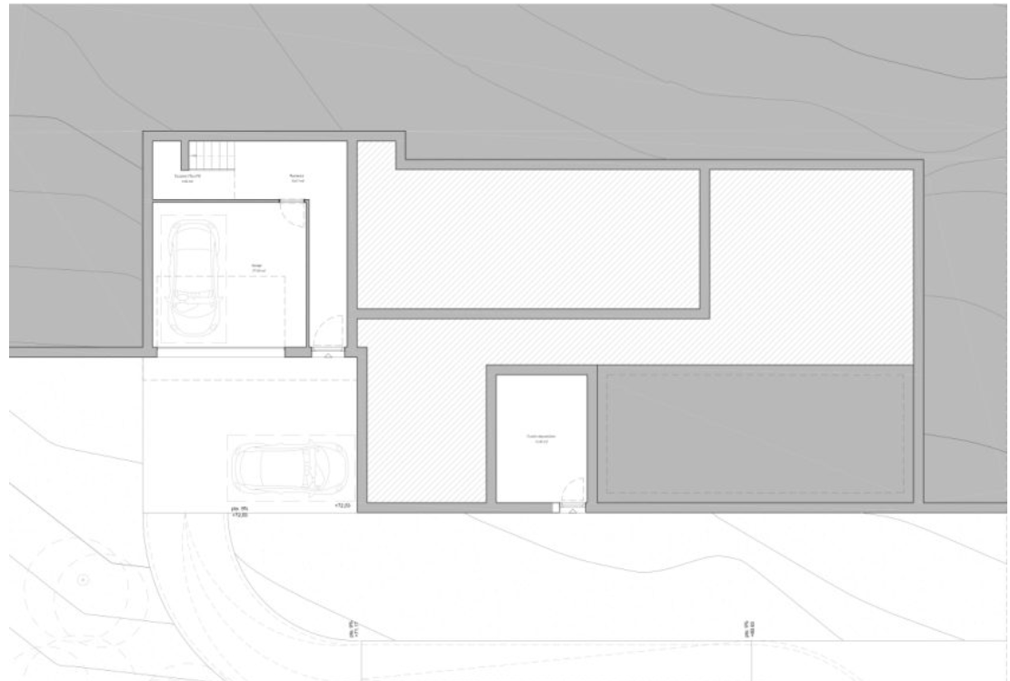
Detta projekt ligger i Empedrola och erbjuder pittoresk utsikt över havet och Peñón de Ifach, på en generös tomt på 1 000 m2. Viktiga funktioner: Röjd tomt redo för en fantastisk villa på 236m2Föreslaget projekt inkluderar 10x4 pool, 3 sovrum, rymligt vardagsrum, matplats och kökYtterligare höjdpunkter: Garage och ca 80m2 terrasserAnpassningsbar för att möta köparens preferenserEgenskaper specifikationer: Sovrum: 3Garage: 1Tomt storlek: 1.000m2Byggyta: 236m2Fördelar med platsen: 5 minuters bilresa till den historiska gamla staden för kulturell fördjupning77 km från Alicante flygplats20 minuters bilresa till golfklubbStormarknader inom 7 minuters bilresa35 minuters bilresa till Ibiza färjaIngen provision för köpare!

Funktioner

Climate control

  • Luftkonditionering

Features

  • Privat terrass
  • Täckt terrass
  • Dubbelglas

Parking

  • Garage
  • Privat parkering

Setting

  • Nära till havet

Beläget i

Prisvärdhet

Beräkna dina månatliga bolånebetalningar

Din beräknade månadsbetalning

Bli förkvalificerad

Inköpskostnader

Vår kostnadskalkylator ger en uppskattning av alla kostnader som är involverade i att köpa ett hus i Spanien. Använd dessa siffror endast som en riktlinje: de faktiska siffrorna kommer att variera beroende på fastighetens läge och vilken bank du väljer, bland andra faktorer. Till summan måste du lägga till dina bolånebetalningar och comisión de apertura om din bank debiterar det.

Totala utgifter

Du kanske gillar dessa fastigheter också