Fristående villa till salu i Jávea

Property ID: VPO-N9405

€2,200,000

4,701 €/m2


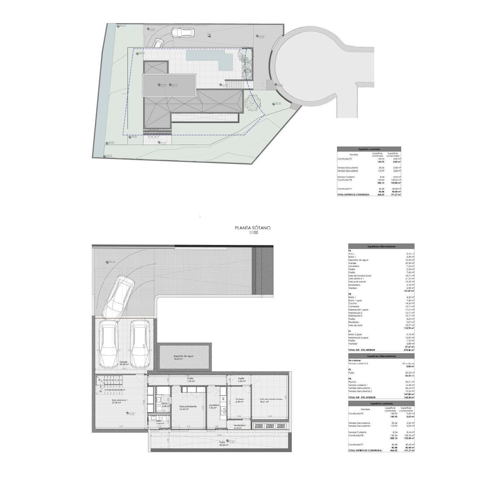
468
4
beds
4
baths
1000
plot

Modern nybyggd villa med lyxiga detaljer i Javea Modernt medelhavsliv på Costa Blanca Denna fantastiska fristående nybyggda villa i Javea kombinerar högkvalitativa ytbehandlingar, elegant design och optimal funktionalitet på tre rymliga våningar. Fastigheten ligger i en av de mest eftertraktade kuststäderna på norra Costa Blanca och erbjuder en lugn bostadsmiljö omgiven av gröna berg, naturparker och vackra stränder. Javea är känt för sitt kristallklara vatten, traditionella gastronomi och medelhavslivsstil, vilket gör det till en idealisk plats för både permanent boende och investering. Rymlig källare utformad för mångsidighet Källarvåningen är genomtänkt utformad för att möta moderna livsstilsbehov. Den inkluderar ett öppet garage för två bilar, ett badrum, en gästtoalett, ett öppet konceptrum, ett multifunktionellt rum och en uteplats som släpper in naturligt ljus i utrymmet. Denna våning erbjuder oändliga möjligheter, oavsett om du tänker dig ett gym, ett underhållningsrum, ett kontor eller en gästsvit. Elegant bottenvåning med sammanhängande vardagsrum Bottenvåningen har ett ljust vardagsrum med matplats som smälter in perfekt med det fullt utrustade köket, vilket skapar en perfekt plats för familjesammankomster. En entréhall, gästtoalett och korridorer ger praktisk funktionalitet och flöde. Denna våning har två bekväma sovrum som delar ett modernt badrum och ett generöst master bedroom med eget badrum, vilket erbjuder avskildhet och komfort. Lyxig mastersvit på övervåningen Övervåningen är tillägnad ett andra master bedroom, som erbjuder en exklusiv tillflyktsort med eget badrum, klädkammare och hall. Detta privata utrymme garanterar komfort och lugn med vacker utsikt över det omgivande gröna landskapet. Utomhusliv utformat för medelhavsklimatet Fastighetens utomhusområden är skapade för att njuta av utomhuslivet året runt. Den har två täckta terrasser och två otäckta terrasser på bottenvåningen. En av de täckta terrasserna omger poolen, perfekt för sommarens avkoppling, medan den otäckta terrassen bredvid köket är idealisk för utomhusmåltider och sammankomster. Utrustad med golvvärme och luftkonditionering garanterar villan komfort under alla årstider. Utmärkt läge i Javea El Arenal-stranden 3 km Javeas hamn och marina 7 km Javea Golf Club 3 km Alicante flygplats 100 km Valencia flygplats 125 km Ditt medelhavshem väntar Oavsett om du letar efter en lyxig bostad, ett semesterhus eller en säker långsiktig investering, erbjuder denna villa en exceptionell livsstil i Javea. Kontakta oss idag för att boka en visning och upptäck ditt framtida hem på Costa Blanca.

Beläget i

Prisvärdhet

Beräkna dina månatliga bolånebetalningar

Din beräknade månadsbetalning

Bli förkvalificerad

Inköpskostnader

Vår kostnadskalkylator ger en uppskattning av alla kostnader som är involverade i att köpa ett hus i Spanien. Använd dessa siffror endast som en riktlinje: de faktiska siffrorna kommer att variera beroende på fastighetens läge och vilken bank du väljer, bland andra faktorer. Till summan måste du lägga till dina bolånebetalningar och comisión de apertura om din bank debiterar det.

Totala utgifter

Du kanske gillar dessa fastigheter också