Fristående villa till salu i Jávea

Property ID: VPO-N9327

€1,450,000

6,905 €/m2


210
3
beds
2
baths
1000
plot

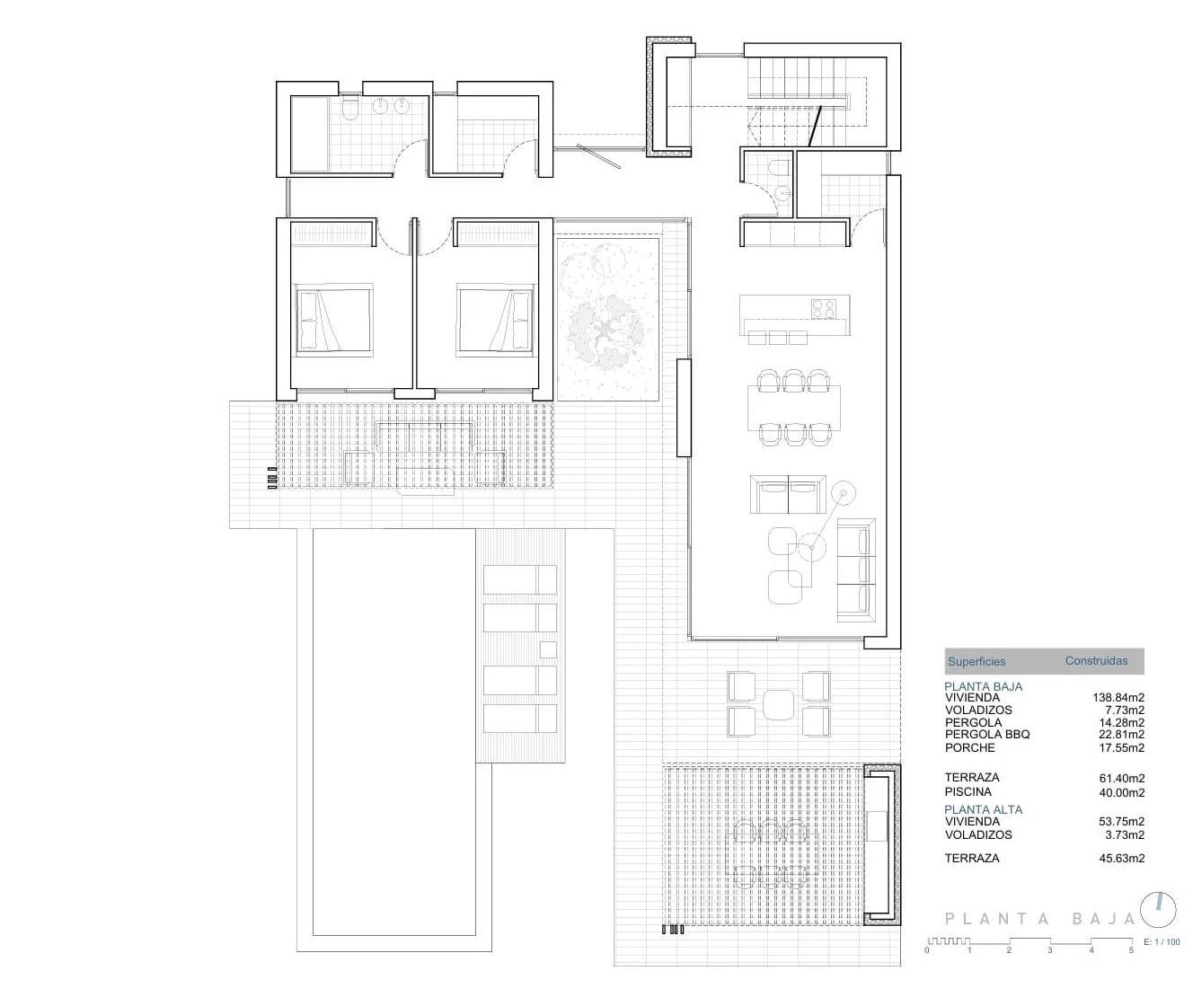
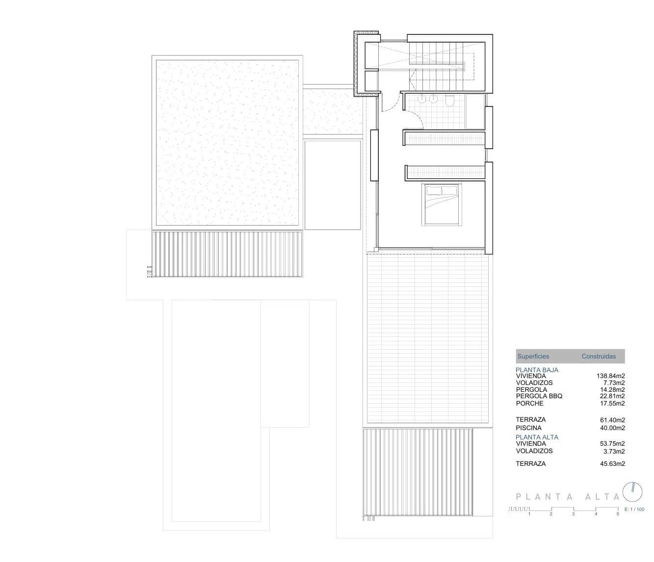
Modern nybyggd villa nära havet i Javea Exklusivt medelhavsliv i Javea Upptäck denna fantastiska moderna villa belägen i ett av de mest eftertraktade och fridfulla områdena i Javea, bara 800 meter från havet. Belägen mellan tallar och nära de berömda Cala de la Barraca och Cala del Portixol, erbjuder denna bostad en privilegierad livsstil omgiven av natur och kustens skönhet. Javea, beläget på Costa Blanca mellan Alicante och Valencia, är känt för sitt kristallklara vatten, charmiga gamla stan och milda klimat året runt, vilket gör det till en av de mest eftertraktade destinationerna i Medelhavet. Elegant design och ljusa öppna ytor Denna villa är designad för komfort och stil och har en modern arkitektur med mjuka linjer, stora fönster och en flytande integration mellan inomhus och utomhus. Naturligt ljus badar varje hörn och skapar en varm och inbjudande atmosfär som är idealisk för både boende och underhållning. Villan är fördelad på två våningar och omfattar Öppen planlösning med vardagsrum och matplats med smidig tillgång till terrasser och pool Fullt möblerat kök med öppen planlösning 3 sovrum och 2 badrum plus 1 gästtoalett Tvättstuga och skafferi Privat trädgård, terrasser och poolområde med sommarkök Privat mastersvit och utomhusliv På bottenvåningen finns två sovrum, ett badrum och rymliga sällskapsutrymmen. På övervåningen erbjuder det stora sovrummet en privat oas med eget badrum, en generös klädkammare och en 45 m2 stor terrass, perfekt för att njuta av soluppgången och den medelhavsinspirerade brisen. Utomhusområdet har utformats för avkoppling, med en privat pool, solterrasser och en grönskande omgivning som garanterar lugn och avskildhet. Utmärkt läge i norra Costa Blanca Javea erbjuder en exceptionell livsstil med vackra stränder, vandringsleder, marinor, golfbanor och gourmetrestauranger. Staden ligger 92 km från Alicante och 105 km från Valencia. Viktiga avstånd Stranden och Cala del Portixol: 0,8 km Javea hamn och marina: 8 km Javea Golf Club: 10 km Alicante flygplats: 100 km Valencia flygplats: 125 km Ditt medelhavshem väntar Oavsett om du söker en permanent bostad, en lyxig semesterbostad eller en förstklassig investering, erbjuder denna villa avskildhet, komfort och ett exceptionellt läge vid kusten. Kontakta oss idag för mer information eller för att boka en visning av detta exklusiva moderna hem i Javea.

Beläget i

Prisvärdhet

Beräkna dina månatliga bolånebetalningar

Din beräknade månadsbetalning

Bli förkvalificerad

Inköpskostnader

Vår kostnadskalkylator ger en uppskattning av alla kostnader som är involverade i att köpa ett hus i Spanien. Använd dessa siffror endast som en riktlinje: de faktiska siffrorna kommer att variera beroende på fastighetens läge och vilken bank du väljer, bland andra faktorer. Till summan måste du lägga till dina bolånebetalningar och comisión de apertura om din bank debiterar det.

Totala utgifter

Du kanske gillar dessa fastigheter också