Fristående villa till salu i Finestrat

Property ID: VPO-N7627

€1,050,000

3,333 €/m2


315
4
beds
4
baths
705
plot

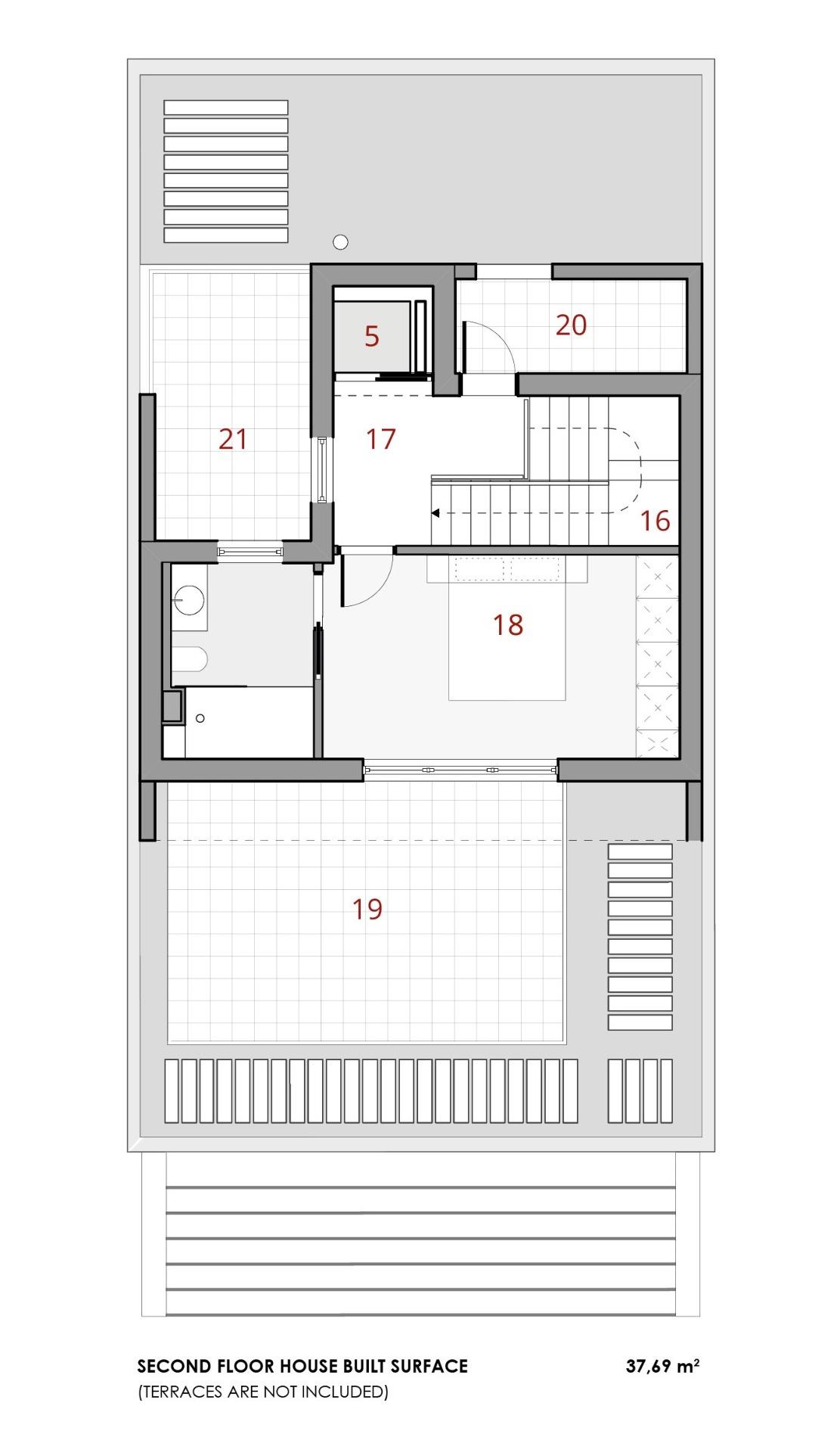
Nybyggda villor i finestrat nybyggda moderna villor i Finestrat. Villor med 4 sovrum och 4 badrum, kök med öppen planlösning och vardagsrumsdel, terrass med magnifik utsikt över Benidorm, privat trädgård med pool och parkeringsplats. Den laterala trädgården, prydd med kaktusar och vitt grus, förbinder Access Level 1 med bottenvåningen (Level O). Användningen av naturligt gräs i resten av terrängen presenteras som en extra funktion genom ett noggrant utformat landskapsarkitekturprojekt. Varje nivå accentueras med ett material som förstärker dess karaktär. Nivå O är klädd i naturlig kalksten som ger stöd åt hela strukturen. Nivå 1, med sin monolayer-finish och fönsterluckor i trä, skyddar den mest intima delen av bostaden. Slutligen öppnar plan 2, där det stora sovrummet ligger, upp mot en rymlig terrass och är klädd med strukturerat monolayer i en varm ton. Medelhavsestetiken uppnås genom en perfekt sammansmältning av tradition, modern arkitektur och natur. Finestrat ligger i Marina Baixa-regionen på Costa Blanca, nära grannstaden Benidorm och cirka 40 kilometer från staden Alicante och den internationella flygplatsen. Byn ligger på bergssluttningen Puig Campana och erbjuder vacker utsikt över bergen, kusten och Medelhavet. Benidorm ligger bara fem minuters bilresa från fastigheterna och erbjuder alla tjänster du behöver, inklusive butiker, barer, restauranger, stormarknader, banker, apotek och flera privata internationella skolor.

Beläget i

Prisvärdhet

Beräkna dina månatliga bolånebetalningar

Din beräknade månadsbetalning

Bli förkvalificerad

Inköpskostnader

Vår kostnadskalkylator ger en uppskattning av alla kostnader som är involverade i att köpa ett hus i Spanien. Använd dessa siffror endast som en riktlinje: de faktiska siffrorna kommer att variera beroende på fastighetens läge och vilken bank du väljer, bland andra faktorer. Till summan måste du lägga till dina bolånebetalningar och comisión de apertura om din bank debiterar det.

Totala utgifter

Du kanske gillar dessa fastigheter också