Lägenhet till salu i Mijas

Property ID: RED-SP1381

€429,100

3,937 €/m2


109
3
beds
2
baths
0
plot

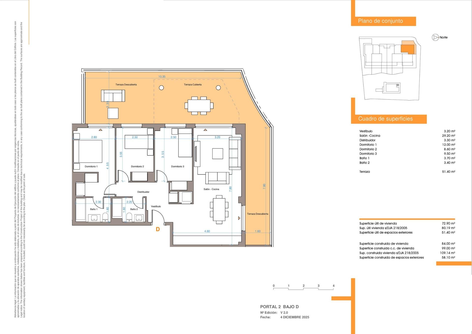
Nybyggda lägenheter nära stranden i Las Lagunas de Mijas Modernt kustliv bara några steg från havet Detta exklusiva nya bostadsområde är utformat för att erbjuda komfort, kvalitet och en avslappnad medelhavslivsstil för dig och din familj. Komplexet ligger i Las Lagunas de Mijas, bara 250 meter från Playa Marina och El Charcon-stranden, och har ett privilegierat läge vid kusten med små vikar, kristallklart vatten och utmärkta snorklingsområden. Flera restauranger, kaféer och dagliga tjänster ligger inom gångavstånd, vilket gör detta läge idealiskt för boende året runt eller semester. Moderna bostäder med utomhusutrymmen Bostadsområdet består av endast 24 moderna lägenheter med 2 och 3 sovrum, fördelade på bottenvåningen, första våningen, andra våningen och takvåningen. Byggnaden har två separata ingångar, vilket ger avskildhet och bekvämlighet. Bostäderna på bottenvåningen har privata trädgårdar, perfekta för utomhusliv, medan takvåningarna har rymliga öppna terrasser med fri utsikt. Alla bostäder har en privat parkeringsplats och ett förråd. Högkvalitativa ytbehandlingar och energieffektivitet Varje bostad har utformats med fokus på komfort, funktionalitet och modern design. Köken är fullt möblerade och utrustade med vitvaror, medan luftkonditionering är fullt installerad. Bostäderna har också en förstärkt säkerhetsdörr och ett aerotermiskt system för varmvatten. Med en energieffektivitetsklass på A garanterar dessa bostäder lägre energiförbrukning och minskade driftskostnader. Exklusiva gemensamma utrymmen för avkoppling Boende kan njuta av noggrant utformade gemensamma utrymmen som förbättrar vardagen. Komplexet har en gemensam pool, anlagda trädgårdar och en chill out-area, vilket skapar en trevlig miljö för avkoppling, umgänge och njutning av Costa del Sols klimat. Varje detalj har noggrant planerats för att erbjuda en harmonisk och välkomnande atmosfär. Las Lagunas de Mijas och omgivningar Las Lagunas de Mijas är ett snabbt växande och välförbundet område som erbjuder alla nödvändiga tjänster såsom stormarknader, butiker, apotek, vårdcentraler, restauranger och fritidsanläggningar. Golfälskare kommer att uppskatta närheten till flera golfbanor, medan den närliggande kusten erbjuder ett brett utbud av strandaktiviteter. Fuengirola ligger bara några minuter bort och erbjuder en livlig strandpromenad, småbåtshamn och utmärkta transportförbindelser. Avstånd till viktiga sevärdheter Playa Marina och El Charcon-stranden: 0,25 km Chaparral Golf Club: 2 km Fuengirola centrum och hamn: 5 km Marbellas historiska centrum: 20 km Puerto Banus: 25 km Málagas internationella flygplats: 25 km Ditt nya hem på Costa del Sol Detta nybyggda bostadskomplex i Las Lagunas de Mijas erbjuder den perfekta kombinationen av läge, kvalitet och livsstil. Kontakta oss idag för att få mer information eller för att boka en visning och säkra ditt nya hem nära havet på Costa del Sol. 849

Funktioner

Features

  • lift
    Hiss
  • Privat terrass
  • dresser-drawers-5
    Förrråd

Parking

  • Privat parkering

Pool

  • Gemensam pool

Security

  • Gated Complex

Setting

  • Nära till havet
  • Nära skolor
  • Nära till affärer

Beläget i

Prisvärdhet

Beräkna dina månatliga bolånebetalningar

Din beräknade månadsbetalning

Bli förkvalificerad

Inköpskostnader

Vår kostnadskalkylator ger en uppskattning av alla kostnader som är involverade i att köpa ett hus i Spanien. Använd dessa siffror endast som en riktlinje: de faktiska siffrorna kommer att variera beroende på fastighetens läge och vilken bank du väljer, bland andra faktorer. Till summan måste du lägga till dina bolånebetalningar och comisión de apertura om din bank debiterar det.

Totala utgifter

Du kanske gillar dessa fastigheter också

Rekommenderad
Mijas
2 bedrooms · 2 bathrooms · 76 m²
€477,250 - €1,081,343
REF. ID: PROCSW-PII055
Nyproduktion Rekommenderad