Takvåning till salu i La Nucia

Property ID: RED-SP0646

€1,141,000

7,507 €/m2


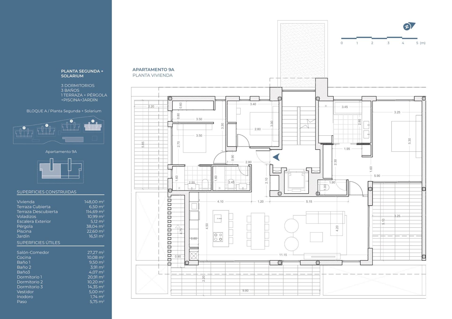
152
3
beds
2
baths
0
plot

NYBYGGT BOSTADSKOMPLEX I LA NUCIA Nybyggt bostadsområde med lägenheter och takvåningar med gemensam utomhuspool, parkering, förråd, hiss, gym, gemensamt spa med uppvärmd inomhuspool, bastu, jacuzzi i La Nucia. Moderna fastigheter med 2 och 3 sovrum, alla med 2 badrum, kök med öppen planlösning med rymligt vardagsrum, inbyggda garderober, terrass, underjordisk parkeringsplats. Takvåningarna har privata solarier med pool. Excellens i sin avantgarde-arkitektur, utsökta finish och avancerade tjänster, en dröm urbanisering för dem som letar efter den högsta nivån av komfort och distinktion. Interiörer som kombinerar elegant design och modern sofistikering, skapar utrymmen som förvandlar varje dag till en exceptionell upplevelse av komfort och välbefinnande. Tyskt designkök, Burger eller liknande, med Silestone-bänkskiva, fullt utrustat. Vitvaror från Siemens eller liknande. Induktionshäll, fläkt, ugn och kylskåp och diskmaskin integrerade i enheterna. Förstärkt entrédörr till fastigheten med säkerhetslås och lackerad panel som matchar inredningens snickerier. Möjlighet att montera lås med fjärrkontroll från smartphone eller surfplatta. Modulära garderober med gångjärn eller skjutdörrar lackerade för att matcha resten av snickeriet, inklusive bagageutrymme, lådor och hängande skena. Fastigheten kommer att förberedas för att kunna dra nytta av höghastighetsinternet. Det kommer att finnas elektrisk golvvärme med låg förbrukning i badrummen. Videointercom kommer att vara elektronisk med färgbild och kommer att ha integrerad fjärrkontroll från telefon eller surfplatta. Samsung luftkonditionering. Varje rum kommer att ha sin egen maskin och oberoende kontroll. Luftkonditioneringen kommer att ha fjärrkontroll. Den kan styras från en telefon eller surfplatta. Den kompletta installationen av luftkonditioneringssystemet kommer att utföras, utrustat med en värmepump för att ge både kylning och uppvärmning. Kanaler av glasfiber kommer också att användas. Inomhusenheterna kommer att placeras i undertaket i badrummen och korridoren, medan utomhusenheten kommer att installeras i det område som tilldelats i projektet. Ventilation. Installation av luftförnyelse i bostäder med utsug i badrum och kök och klocka för programmering av tidtabellen. Pool för gemensamt bruk med klorering av saltlösning och automatisk kontroll av PH och klor. I källaren kommer det att finnas ett gym, uppvärmd inomhuspool, jacuzzi, bastu, ångbad, kromoterapi och omklädningsrum med badrum. Stora terrassområden och trädgårdar med inhemska växter för flera användningsområden i det gemensamma området. Tomtens omkrets kommer att planteras med växter som kommer att skapa en privat atmosfär i inhägnaden när de växer. Det kommer att finnas ett videoövervakningssystem för de gemensamma utrymmena. Beläget i ett privilegierat läge, mellan Nucia och Altea, har denna bostad en exceptionell miljö och utmärkta tjänster inom urbaniseringen.

Funktioner

Climate control

  • Luftkonditionering

Features

  • lift
    Hiss
  • Privat terrass
  • Takterass
  • Jacuzzi
  • bus-2
    Nära transport
  • dresser-drawers-5
    Förrråd
  • Gym

Parking

  • Privat parkering

Pool

  • Gemensam pool

Security

  • Gated Complex

Setting

  • Nära skolor
  • Nära till affärer

Views

  • Havsutsikt

Beläget i

Prisvärdhet

Beräkna dina månatliga bolånebetalningar

Din beräknade månadsbetalning

Bli förkvalificerad

Inköpskostnader

Vår kostnadskalkylator ger en uppskattning av alla kostnader som är involverade i att köpa ett hus i Spanien. Använd dessa siffror endast som en riktlinje: de faktiska siffrorna kommer att variera beroende på fastighetens läge och vilken bank du väljer, bland andra faktorer. Till summan måste du lägga till dina bolånebetalningar och comisión de apertura om din bank debiterar det.

Totala utgifter

Du kanske gillar dessa fastigheter också