Lägenhet till salu i Marbella

Property ID: RED-SP0624

€679,000

4,353 €/m2


156
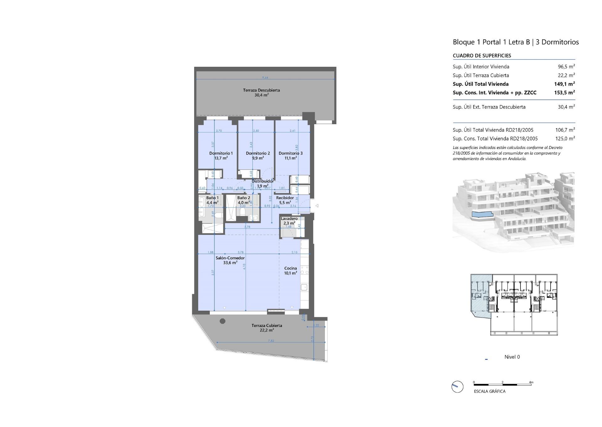
3
beds
2
baths
0
plot

NYBYGGT BOSTADSOMRÅDE I MARBELLA Nybyggt unikt bostadsområde med 39 lägenheter och duplex med 2, 3 och 4 sovrum beläget i Marbella, i ett privilegierat område i Altos de Los Monteros. Natur, drömlika vyer, lugn, lyxigt läge... Upptäck en ny livsstil på denna unika plats. Det finns två ord som perfekt beskriver det innovativa konceptet för detta bostadsområde: ljus och utsikt. Utformningen av de 39 lägenheterna och takvåningarna i duplex med solarium i detta exklusiva bostadsområde kretsar kring dessa två ord. Tack vare sitt exceptionella läge, i det övre området av Los Monteros, bara 10 minuter från centrum av Marbella, hittar du här lugnet och semesterlivet som du alltid har drömt om. När det gäller ditt hem är utrymme det viktigaste. Det är därför vi har utformat rymliga, öppna vardagsrum med kök med öppen planlösning och premiumfunktioner i badrum och sovrum. Känslan av rymd i rummen accentueras av kontinuiteten mellan terrassen och vardagsrummet, som du kan anpassa efter dina önskemål om du vill. Tänk dig att komma hem efter en lång dag, vad sägs om att varva ner i spaet? Eller att släppa ut adrenalinet och bränna kalorier i fitnessområdet med utomhusterrass. Eller ta en drink i poolbaren. Tänk om du inte behövde lämna bostadsområdet för att arbeta utan kunde göra det i dess coworking-område. Hav, berg, natur, kultur, byar gömda bland stenekar... Allt detta och mycket mer är Costa del Sol. Mer än 320 soldagar per år gör att de som besöker regionen alltid vill komma tillbaka. Costa del Sol är känt som Costa del Golf bland golfälskare, tack vare sina mer än 40 golfbanor. Hälften av dem ligger i Marbella. 849

Funktioner

Climate control

  • Luftkonditionering

Features

  • lift
    Hiss
  • Privat terrass
  • dresser-drawers-5
    Förrråd
  • Gym

Parking

  • Privat parkering

Pool

  • Gemensam pool

Security

  • Gated Complex

Setting

  • Nära skolor
  • Nära till affärer

Views

  • Havsutsikt

Beläget i

Prisvärdhet

Beräkna dina månatliga bolånebetalningar

Din beräknade månadsbetalning

Bli förkvalificerad

Inköpskostnader

Vår kostnadskalkylator ger en uppskattning av alla kostnader som är involverade i att köpa ett hus i Spanien. Använd dessa siffror endast som en riktlinje: de faktiska siffrorna kommer att variera beroende på fastighetens läge och vilken bank du väljer, bland andra faktorer. Till summan måste du lägga till dina bolånebetalningar och comisión de apertura om din bank debiterar det.

Totala utgifter

Du kanske gillar dessa fastigheter också

Rekommenderad
2 bedrooms · 2 bathrooms · 80 m²
€920,000 - €2,600,000
REF. ID: PROCSW-PII068
Nyproduktion Rekommenderad