Fristående villa till salu i Mijas

Property ID: RED-N9442

€1,112,000

7,514 €/m2


148
3
beds
2
baths
12
plot

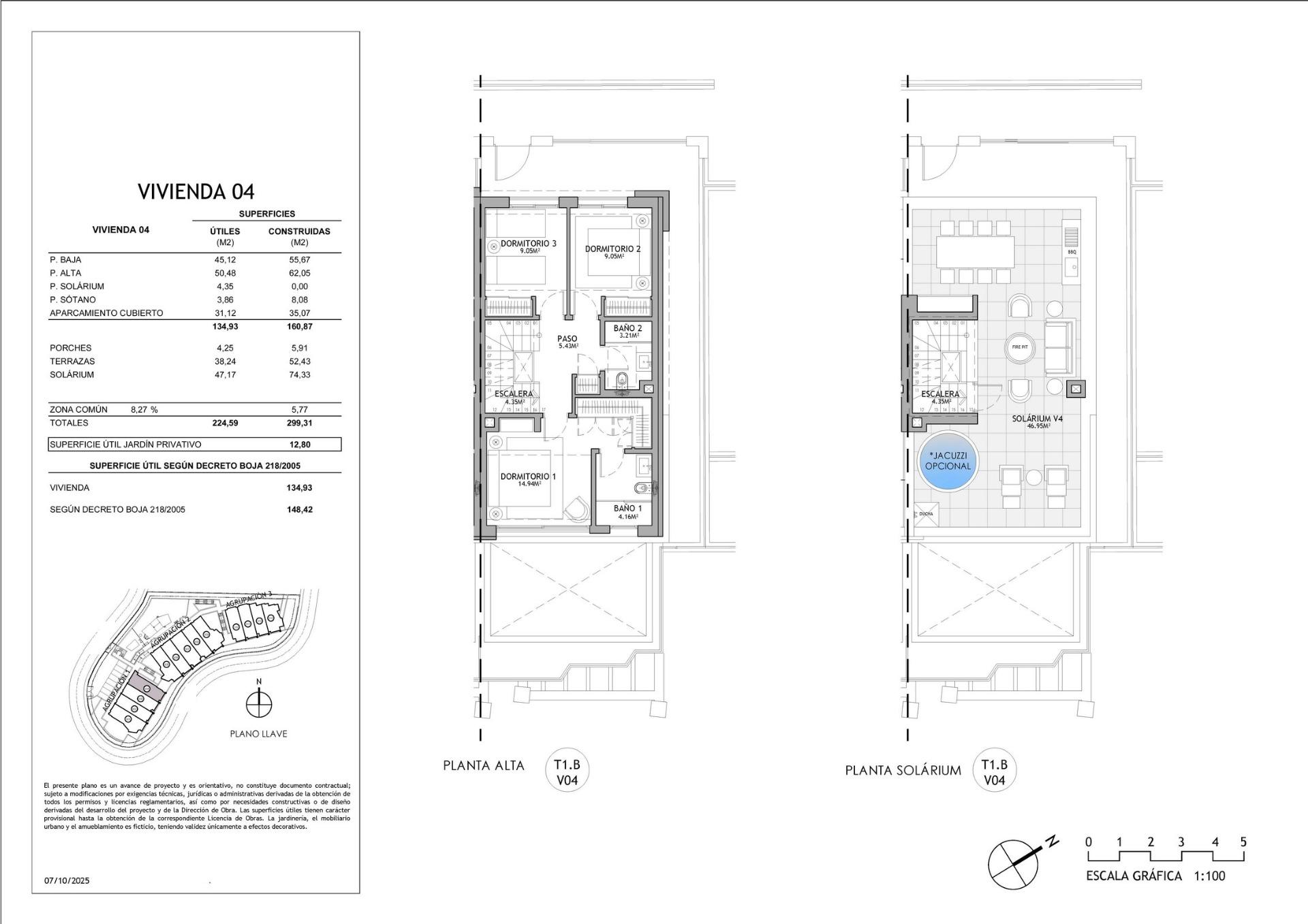
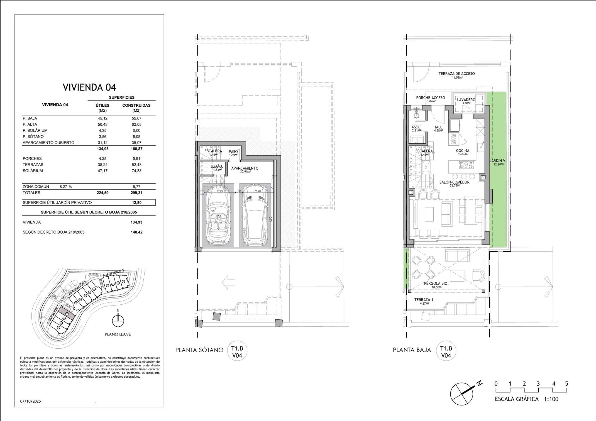
Nybyggda radhus med havsutsikt nära Miraflores Golf Calahonda Boutique-bostäder i ett utmärkt läge i Calahonda Detta exklusiva nybyggnadsprojekt består av en boutique-kollektion med endast 13 radhus med två och tre sovrum samt hörnradhus belägna på en upphöjd tomt nära Miraflores Golf i Calahonda. Området är känt för sin lugna bostadsmiljö och erbjuder samtidigt utmärkt tillgång till stränder, golfbanor och vardagliga tjänster. Calahonda ligger mellan Marbella och Fuengirola, vilket gör det till ett av de mest bekväma och etablerade lägena på Costa del Sol. Hus med havsutsikt, avskildhet och bra läge Varje hus har öppen havsutsikt från alla våningar tack vare sitt höga läge och noggrant valda läge. Solterrasserna på taket erbjuder en imponerande panoramautsikt över Medelhavskusten och skapar en privat utomhusoas för varje husägare. Läget och den arkitektoniska avskärmningen säkerställer en perfekt balans mellan avskildhet och fri utsikt. Rymliga terrasser och öppen planlösning Radhusen är utformade för att utvidga bostadsytorna utomhus med generösa terrasser som är perfekta för att äta, koppla av eller njuta av havsbrisen. Den öppna planlösningen förbinder köket, matplatsen och vardagsrummet med direkt tillgång till terrasserna, vilket skapar ljusa och luftiga utrymmen med fri sikt mot havet. Vissa bostäder har även privata trädgårdar på bottenvåningen. Flexibla planlösningar för modernt boende Bostäderna är fördelade på två våningar plus ett privat solarium på taket. Bottenvåningen har ett öppet vardagsrum och matrum med integrerat kök, tvättstuga och gästtoalett. Övre våningen har två eller tre dubbelrum och två badrum, inklusive ett master bedroom med eget badrum. Flera taksolarium har en studio som ger ytterligare mångsidigt utrymme för ett hemmakontor eller en fritidsyta. Högklassiga specifikationer och komfortfunktioner Alla fastigheter är byggda med högkvalitativa material och moderna system. Funktionerna inkluderar fullt installerad luftkonditionering och uppvärmning med aerotermiskt system samt fullt utrustade kök med vitvaror från Siemens. Fönster från golv till tak maximerar det naturliga ljuset och förstärker kopplingen mellan inomhus- och utomhusutrymmen. De flesta enheterna har två underjordiska parkeringsplatser och vissa bostäder har även ett privat förråd. Gemensamma utrymmen i resortstil I hjärtat av området finns en pool för boende med rymliga solterrasser som är utformade för att skapa en lugn miljö i resortstil. Detta gemensamma utrymme är perfekt för att koppla av efter en runda golf eller njuta av Medelhavsklimatet med familj och vänner. Utmärkt kommunikation och närliggande bekvämligheter Miraflores Golf ligger cirka 1 km bort, vilket gör detta bostadsområde idealiskt för golfentusiaster. Calahondas stränder ligger cirka 1,4 km från bostäderna och erbjuder ett brett utbud av strandbarer och vattenaktiviteter. Marbella och La Cala de Mijas ligger båda inom bekvämt köravstånd, medan Malagas flygplats har bra förbindelser via huvudvägen längs kusten. Viktiga avstånd till sevärdheter Miraflores Golf: 1 km Calahondas strand: 1,4 km La Cala de Mijas: 6 km Marbella: 15 km Puerto Banus marina: 18 km Málagas flygplats: 35 km Säkra ditt hem med havsutsikt på Costa del Sol Kontakta oss idag för mer information eller för att boka en privat visning av dessa exklusiva nybyggda radhus nära Miraflores Golf i Calahonda.

Funktioner

Climate control

  • Centralvärme

Features

  • Privat terrass
  • Takterass
  • bus-2
    Nära transport
  • home-improvement-12_1
    Tvättstuga

Parking

  • Mer än en parkering

Pool

  • Gemensam pool

Security

  • Gated Complex

Setting

  • Nära skolor
  • Nära till affärer

Views

  • Havsutsikt

Beläget i

Prisvärdhet

Beräkna dina månatliga bolånebetalningar

Din beräknade månadsbetalning

Bli förkvalificerad

Inköpskostnader

Vår kostnadskalkylator ger en uppskattning av alla kostnader som är involverade i att köpa ett hus i Spanien. Använd dessa siffror endast som en riktlinje: de faktiska siffrorna kommer att variera beroende på fastighetens läge och vilken bank du väljer, bland andra faktorer. Till summan måste du lägga till dina bolånebetalningar och comisión de apertura om din bank debiterar det.

Totala utgifter

Du kanske gillar dessa fastigheter också