Fristående villa till salu i Mijas

Property ID: RED-N9339

€1,675,000

4,869 €/m2


344
4
beds
3
baths
501
plot

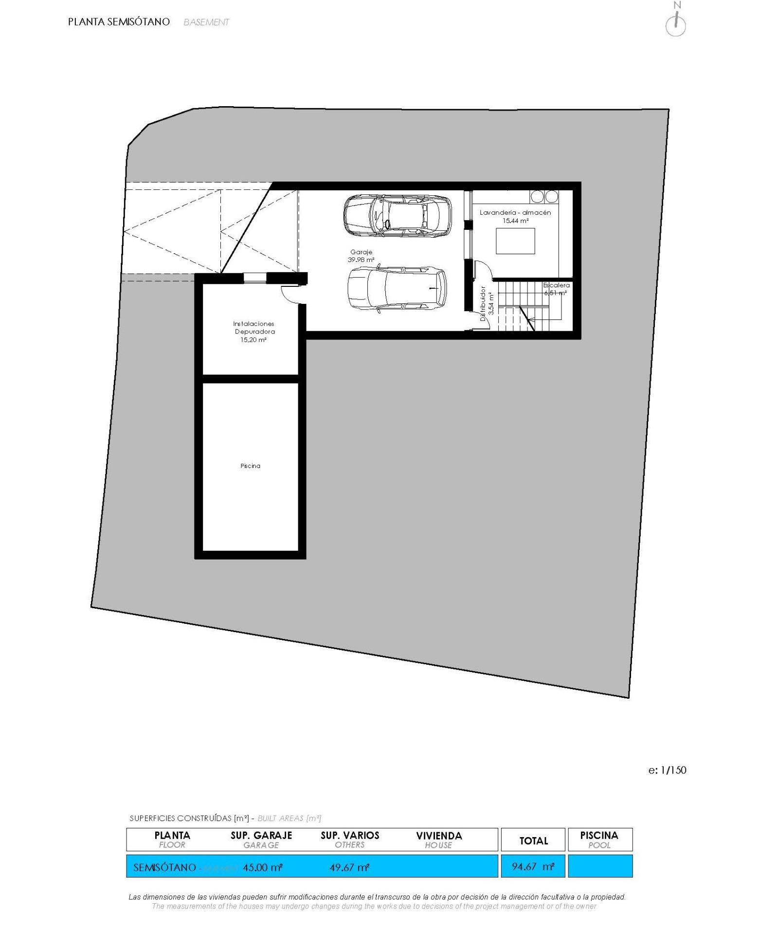
Exklusiva nya villor till salu i Las Farolas, Mijas Costa Utmärkt läge vid havet på Costa del Sol Upptäck detta nya projekt med 7 lyxvillor beläget i den prestigefyllda och väletablerade urbanisationen Las Farolas, mellan Fuengirola och La Cala de Mijas. Dessa exceptionella bostäder ligger bara 100 meter från stranden och har delvis utsikt över havet och bergen samt enkel tillgång direkt från kustvägen N-340 (A7). Området är känt för sin lugn, närhet till Medelhavet och utmärkta förbindelser till Málaga, Marbella och flygplatsen. Elegant design och överlägsen byggkvalitet Detta projekt, som byggts av en byggherre med lång erfarenhet på Costa del Sol, speglar de högsta standarderna för kvalitet, säkerhet och modern design. Varje villa kombinerar medelhavscharm med modern arkitektur för att erbjuda ett ljust, funktionellt och elegant boende. Rymlig planlösning på tre våningar Varje villa har tre våningar med generösa utrymmen både inomhus och utomhus: Källare: garage för två bilar, teknikrum och tvättstuga. Bottenvåning: rymligt vardagsrum med kök, ett sovrum eller kontor och ett badrum. Vardagsrummet vetter mot en stor terrass med privat pool och trädgård. Övre våningen: ytterligare sovrum, inklusive mastersvit med separat badkar och tillgång till privata terrasser, några med havsutsikt. Lyxiga ytbehandlingar och modern komfort Varje villa är utrustad med premiummaterial och den senaste tekniken, inklusive: Fullt utrustade köksapparater från Bosch Motoriserade fönsterluckor i alla sovrum Golvvärme via aerotermiskt system och luftkonditionering via kanaler. Smart hemautomatisering för att styra persienner, belysning och klimat Anlagda trädgårdar med automatiskt bevattningssystem Avstånd till viktiga sevärdheter: Strand: 100 m La Cala de Mijas: 3 km Fuengirola centrum: 6 km Marbella: 22 km Málaga internationella flygplats: 30 km Närmaste golfbana (Chaparral Golf): 2 km Málagas centrum: 40 km En livsstil präglad av komfort och prestige Dessa villor i Las Farolas erbjuder en oöverträffad kombination av avskildhet, lyx och närhet till havet, vilket gör dem idealiska som permanentbostad, semesterbostad eller investering på Costa del Sol. Kontakta oss idag för att boka en visning och upptäck din drömvilla i Mijas Costa.

Funktioner

Features

  • Privat terrass
  • dresser-drawers-5
    Förrråd
  • home-improvement-12_1
    Tvättstuga

Parking

  • Mer än en parkering

Pool

  • Private pool

Security

  • Gated Complex

Setting

  • Nära till havet
  • Nära skolor
  • Nära till affärer

Views

  • Havsutsikt

Beläget i

Prisvärdhet

Beräkna dina månatliga bolånebetalningar

Din beräknade månadsbetalning

Bli förkvalificerad

Inköpskostnader

Vår kostnadskalkylator ger en uppskattning av alla kostnader som är involverade i att köpa ett hus i Spanien. Använd dessa siffror endast som en riktlinje: de faktiska siffrorna kommer att variera beroende på fastighetens läge och vilken bank du väljer, bland andra faktorer. Till summan måste du lägga till dina bolånebetalningar och comisión de apertura om din bank debiterar det.

Totala utgifter

Du kanske gillar dessa fastigheter också