Radhus till salu i Los Alcazares

Property ID: RED-N9307

€357,000

2,644 €/m2


135
3
beds
2
baths
0
plot

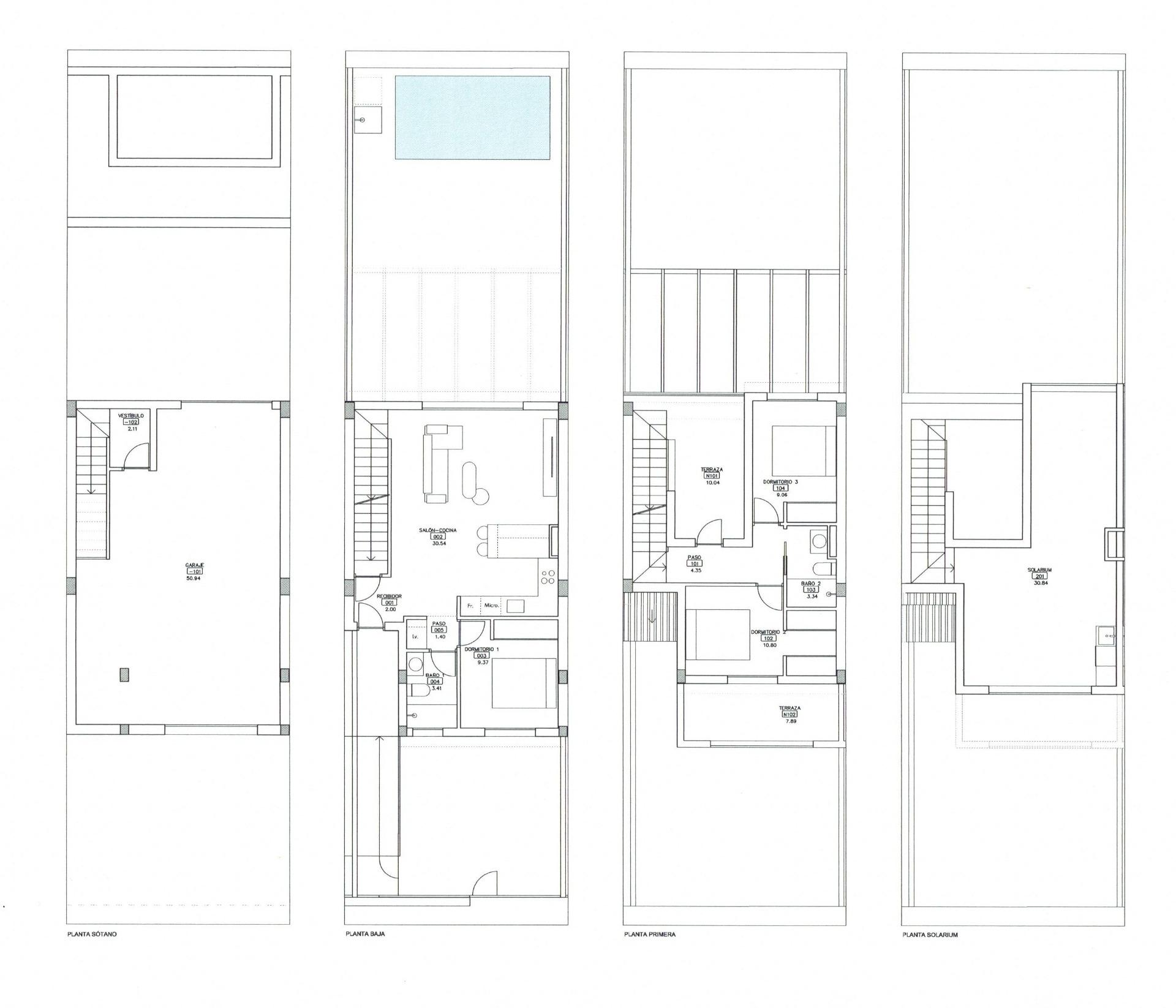
Nybyggda radhus vid La Serena Golf i Los Alcázares Premiumläge vid golfbanan och havet Upptäck ett exklusivt bostadsområde med 31 nybyggda radhus vid La Serena Golf i Los Alcázares, bara 600 meter från Mar Menor. Beläget i hjärtat av Costa Cálida kombinerar denna privilegierade miljö golf, strand och medelhavsliv. Med alla bekvämligheter i närheten och utmärkta vägförbindelser är detta den perfekta platsen för både semester och åretruntboende. Moderna hus med privat pool och takterrass Varje hus har en elegant, modern design och ljusa interiörer. Husen är fördelade på tre våningar plus takterrass, vilket ger maximal komfort och avskildhet: Källare med privat garage för 2 bilar och tillgång till en uteplats Bottenvåning med öppen planlösning mellan vardagsrum och kök som leder till en trädgård och privat pool, 1 sovrum och 1 badrum Första våningen med 2 sovrum, 1 badrum och 2 terrasser Solarium på taket med sommarkök, perfekt för att koppla av och njuta av panoramautsikten Öst- och västläge garanterar utmärkt naturligt ljus och utomhusliv hela dagen. Högkvalitativa ytbehandlingar och komfort Dessa hus är byggda enligt högsta standard och erbjuder förstklassiga funktioner, inklusive: Privat pool Källargarage för 2 bilar med motoriserad dörr Aerotermiskt varmvattensystem Fullt installerad luftkonditionering Möblerat och utrustat kök Fullt utrustade badrum med möbler, speglar och duschväggar Säkerhetsdörr Bo mellan havet och golfbanan Beläget i ett frodigt medelhavslandskap erbjuder detta exklusiva bostadsområde ett lugnt boende intill Serena Golf, en välkänd 18-hålsbana omgiven av natur och stilla sjöar. Det varma, grunda vattnet i Mar Menor är perfekt för simning och vattensporter som segling, paddle surf och kajakpaddling året runt. Viktiga avstånd: Stranden (Mar Menor): 600 m La Serena Golf: intill komplexet Los Alcázares centrum: 2 km Cartagena: 22 km Murcia stad: 40 km Murcia flygplats: 30 km Alicante flygplats: 90 km Säkra din medelhavslivsstil Oavsett om du letar efter en permanent bostad, ett fritidshus eller en lönsam investering, erbjuder dessa hus lyx, bekvämlighet och en överlägsen livsstil vid kusten. Kontakta oss idag för att boka en visning och säkra ditt nya hem i Los Alcázares.

Funktioner

Features

  • Privat terrass
  • Takterass
  • dresser-drawers-5
    Förrråd

Parking

  • Mer än en parkering

Pool

  • Private pool

Security

  • Gated Complex

Setting

  • Nära till havet
  • Nära till golf
  • Nära skolor
  • Nära till affärer

Beläget i

Prisvärdhet

Beräkna dina månatliga bolånebetalningar

Din beräknade månadsbetalning

Bli förkvalificerad

Inköpskostnader

Vår kostnadskalkylator ger en uppskattning av alla kostnader som är involverade i att köpa ett hus i Spanien. Använd dessa siffror endast som en riktlinje: de faktiska siffrorna kommer att variera beroende på fastighetens läge och vilken bank du väljer, bland andra faktorer. Till summan måste du lägga till dina bolånebetalningar och comisión de apertura om din bank debiterar det.

Totala utgifter

Du kanske gillar dessa fastigheter också