Fristående villa till salu i Puerto de Mazarrón

Property ID: RED-N9214

€995,000

5,467 €/m2


182
3
beds
3
baths
259
plot

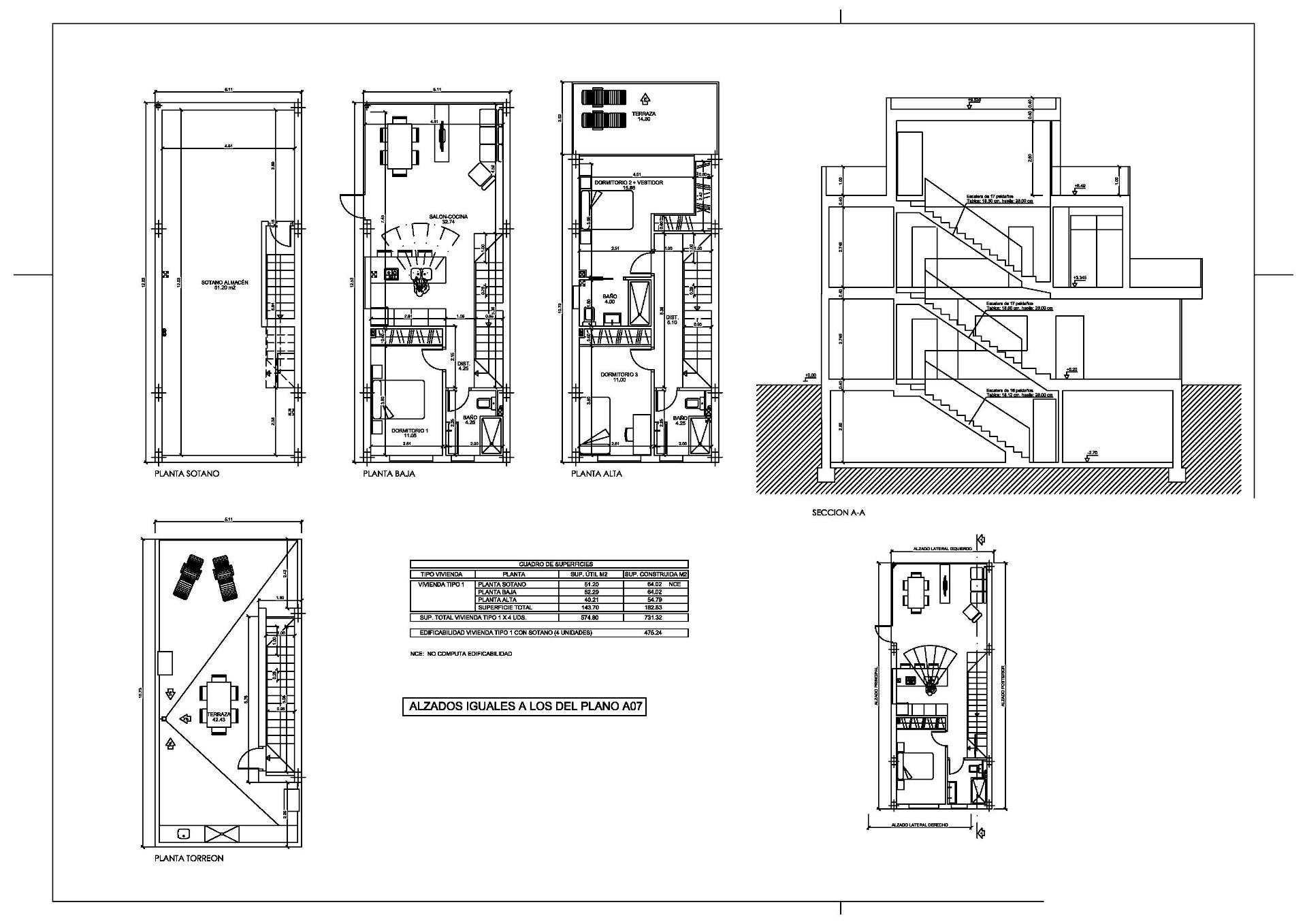
Lyxiga nybyggda villor vid stranden i Puerto de Mazarrón Exklusivt boende vid havet i El Alamillo Upptäck ett unikt nytt bostadsområde med 11 lyxiga fristående villor i Puerto de Mazarrón, i det prestigefyllda området El Alamillo, en av de mest eftertraktade destinationerna på Costa Cálida. Detta gated community erbjuder direkt tillgång till stranden och strandpromenaden och ger den perfekta blandningen av komfort, exklusivitet och medelhavsliv. Rymliga villor med privata pooler och havsutsikt Varje villa ligger på tomter från 259 m2 och är designad med modern arkitektur i fyra våningar: källare, bottenvåning, första våning och privat solarium. Husen har 3 stora sovrum och 3 badrum (inklusive ett en-suite), vilket gör dem idealiska både som permanenta bostäder och semesterbostäder. Viktiga funktioner inkluderar: Privat pool på 8 x 3,5 m Solarium på taket med 2 x 2 m jacuzzi, sommarkök och havsutsikt Helt färdigställd källare på 51,20 m2 med elinstallation och vattenförsörjning, perfekt för en gästlägenhet eller förvaring. Fullt utrustade kök med vitvaror Kompletta badrum med högkvalitativa ytbehandlingar Luftkonditionering (värme/kyla) Aerotermiskt varmvattensystem Utomhuskök vid poolen Förinstallation för laddning av elbil Utmärkt läge på Costa Cálida El Alamillo i Puerto de Mazarrón är känt för sin avslappnade strandatmosfär, sandstränder och utmärkta service. Villorna ligger bara några steg från strandpromenaden och erbjuder daglig tillgång till den medelhavsinspirerade livsstilen. Avstånd till viktiga sevärdheter: Mazarróns centrum: 4 km Cartagena: 35 km Murcia stad: 70 km Murcias internationella flygplats (Corvera): 40 km Alicantes flygplats: 135 km Golfbanor (Camposol, Hacienda del Álamo och andra): 20–30 km Mazarróns marina och hamnområde: 2 km Leverans och investeringsmöjlighet Med leverans planerad till sommaren 2026 representerar detta projekt en unik möjlighet att säkra en villa i första strandlinjen i ett utmärkt läge med hög uthyrningspotential och långsiktigt värde. Säkra din drömvilla idag Upplev den perfekta balansen mellan modern design, komfort och Medelhavets skönhet. Missa inte denna sällsynta chans att bo direkt vid stranden i Puerto de Mazarrón. Kontakta oss idag för att boka ett besök och reservera din nya lyxvilla vid havet.

Funktioner

Features

  • Privat terrass
  • Takterass
  • Jacuzzi
  • Grillplats
  • bus-2
    Nära transport
  • dresser-drawers-5
    Förrråd

Parking

  • Mer än en parkering

Pool

  • Private pool

Security

  • Gated Complex

Setting

  • Nära till havet
  • Beachfront
  • Nära skolor
  • Nära till affärer

Views

  • Havsutsikt

Beläget i

Prisvärdhet

Beräkna dina månatliga bolånebetalningar

Din beräknade månadsbetalning

Bli förkvalificerad

Inköpskostnader

Vår kostnadskalkylator ger en uppskattning av alla kostnader som är involverade i att köpa ett hus i Spanien. Använd dessa siffror endast som en riktlinje: de faktiska siffrorna kommer att variera beroende på fastighetens läge och vilken bank du väljer, bland andra faktorer. Till summan måste du lägga till dina bolånebetalningar och comisión de apertura om din bank debiterar det.

Totala utgifter

Du kanske gillar dessa fastigheter också