Lägenhet till salu i Orihuela Costa

Property ID: RED-N8679

€162,500

2,355 €/m2


69
2
beds
2
baths
0
plot

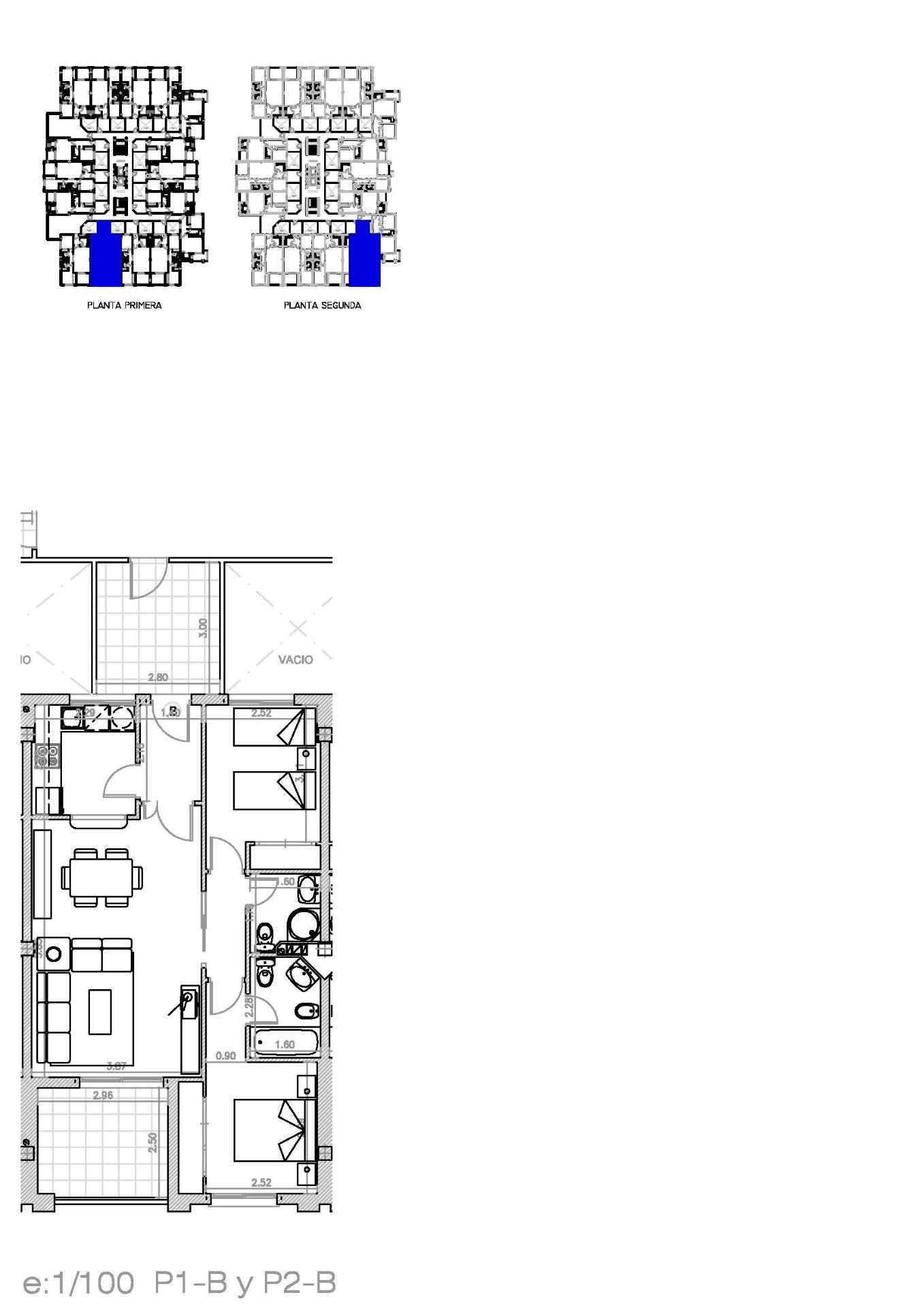
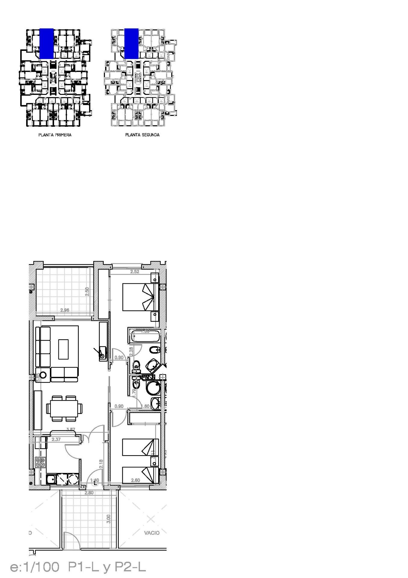
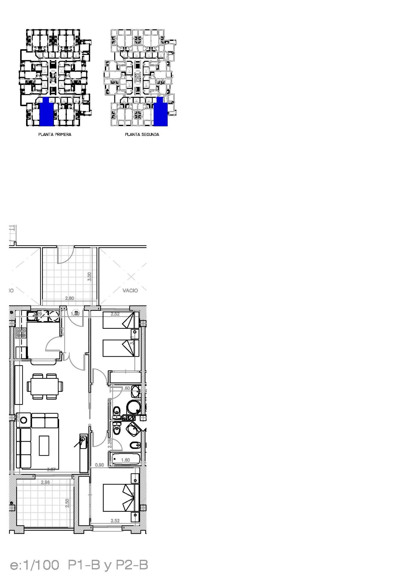
Förnyat bostadsområde i Lomas de Cabo Roig - Renoverade lägenheter Lägenheter i ett utmärkt läge Upptäck denna exklusiva möjlighet att äga en renoverad lägenhet i Lomas de Cabo Roig, ett eftertraktat område i Orihuela Costa. Detta bostadskomplex, som ursprungligen byggdes 2008, genomgår en renovering av vissa enheter och kommer att levereras i juni 2025. Ett visningshus finns tillgängligt för visning, så att du kan se kvalitetsfinishen från första hand. Fastighetsalternativ som passar alla behov Det här projektet erbjuder 27 renoverade lägenheter med olika planlösningar: Lägenheter med 1 och 2 sovrum, idealiska som semesterbostäder eller investeringsobjekt. Lägenheter på bottenvåningen med privata trädgårdar, perfekt för utomhusvistelse. Lägenheter på mellanvåningen med rymliga terrasser, idealiska för att njuta av Medelhavsklimatet. Takvåningar med privata solarium, som erbjuder öppen utsikt och maximal integritet. Varje hem levereras med duschväggar i badrummen och fullt utrustade kök med vitvaror, vilket garanterar en nyckelfärdig lösning för köpare. Exklusiva samhällsfunktioner Bostadskomplexet är utformat för komfort och avkoppling, med: En gemensam pool omgiven av vackra anlagda trädgårdar. Hiss för enkel åtkomst till alla våningar. Underjordiska parkeringsplatser finns som tillval mot en extra kostnad. Ett oslagbart läge i Orihuela Costa Lomas de Cabo Roig är ett prestigefyllt bostadsområde som ligger bara 2 km från kusten i Cabo Roig, hem till några av de vackraste stränderna i Orihuela Costa. Området har goda vägförbindelser och erbjuder ett brett utbud av tjänster, inklusive butiker, restauranger, stormarknader och köpcentra. Avstånd till viktiga platser av intresse: Stränderna i Cabo Roig och Campoamor - 5 minuters bilresa. Köpcentret Zenia Boulevard - 5 km. Villamartín golfbana - 4 km. Alicante flygplats - 30 minuter med bil. Murcia-Corvera flygplats - 1 timme med bil. En smart investering på Costa Blanca Med sitt utmärkta läge, helrenoverade lägenheter och förstklassiga bekvämligheter är detta projekt en idealisk möjlighet för investeringar, semesterboende eller permanent boende. Missa inte den här unika chansen att äga ett hem i ett av de mest eftertraktade områdena på Costa Blanca till ett oslagbart pris. Kontakta oss idag för mer information eller för att boka ett besök!

Funktioner

Features

  • lift
    Hiss
  • Takterass

Parking

  • Parkering under markplan

Setting

  • Nära till golf
  • Nära till affärer
  • Nära till havet
  • Nära småbåtshamn

Beläget i

Prisvärdhet

Beräkna dina månatliga bolånebetalningar

Din beräknade månadsbetalning

Bli förkvalificerad

Inköpskostnader

Vår kostnadskalkylator ger en uppskattning av alla kostnader som är involverade i att köpa ett hus i Spanien. Använd dessa siffror endast som en riktlinje: de faktiska siffrorna kommer att variera beroende på fastighetens läge och vilken bank du väljer, bland andra faktorer. Till summan måste du lägga till dina bolånebetalningar och comisión de apertura om din bank debiterar det.

Totala utgifter

Du kanske gillar dessa fastigheter också