Fristående villa till salu i Algorfa

Property ID: RED-N7615

€239,000

3,319 €/m2


72
2
beds
2
baths
0
plot

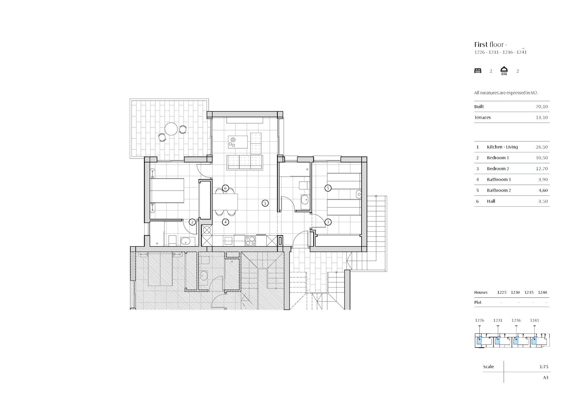
NYBYGGDA BOSTÄDER I LA FINCA GOLF Nybyggt bostadsområde med bungalowlägenheter och radhus i La Finca golf. Moderna bungalows har 2 sovrum, 2 badrum, öppen planlösning kök integrerat med vardagsrummet som förbinder sovrummen, badrummen och terrassen. Bottenvåningen bungalows har terrasser och trädgårdar, översta våningen bungalows har terrasser och solarium på övervåningen. Den sydliga orienteringen ger naturlig belysning när som helst på året och naturlig uppvärmning från gryning till solnedgång, vilket minskar energiförbrukningen. De öppna konceptfastigheterna har fönster och skjutdörrar som möjliggör korsventilation och släpper in ljuset. Fastigheterna är belägna så, att ljuset kan komma in överallt, men samtidigt erbjuder det några fräscha och mysiga hörn. Nyutvecklingen sker på en otrolig tomt där hem har implementerats med en noggrann design och stora utrymmen för att uppnå maximal komfort. Designen fokuserar på invånarnas komfort och välbefinnande och kombinerar modern stil och medelhavskaraktär, ärver traditionell morfologi med användning av stenar på fasaden och baldakiner. Köken kommer att levereras fullt möblerade med en aktuell design av höga och låga möbler med hög kapacitet. Basenheterna är i vit mattlackerad laminat och de övre överskåp i melamin med struktur på pelarna. Semi-dold handtagsprofil med gola*-system. Bänkskiva i arbetsyta och halvö Quarz Compac Blanco Luna eller liknande. Pansrad huvuddörr med vitlackerad yta på insidan och brun struktur på utsidan. Optiskt titthål och säkerhetslås. Vitlackerade innerdörrar, med en front med tre band och rektangulära handtag i rostfritt stål. Inbyggda garderober med vita skjutdörrar. Fönster och skjutdörrar i brun aluminiumsnickeri med strukturerad yta. Vrid- och lutningsbara fönster i badrum, med frostat effektglas och manuella persienner. Elektriska och motoriserade persienner, ytbehandlade i brun strukturerad aluminium. Alla persienner är anslutna till hemautomationssystemet och är synkroniserade för att stängas och öppnas, och kan manövreras från appen. Dubbelglas med solskydd och låg emissivitet för att få ut det mesta av det naturliga ljuset och spara på energikostnaderna. Optimalt estetiskt utseende, exceptionell färg och minimal reflektion. Energicertifiering klass A Fastigheterna har en hög nivå av energicertifiering. Detta är möjligt tack vare värmeisolering av tak och väggar, aluminiumsnickerier med dubbla glasrutor och installation av 5 solpaneler per kvarter Bostäderna är utrustade med el- och telekommunikationsuttag som krävs enligt de elektrotekniska föreskrifterna för lågspänning. Intercom för kommunikation mellan bostaden och huvudentrén. Vi inkluderar ett avancerat hemautomationssystem för att styra de motoriserade persiennerna och tre ljuspunkter. Legrand Valena Next-seriens mekanismer som kan anslutas till hemautomationssystemet. Förinstallation av luftkonditionering: central eller split beroende på modell. Fullt utrustat larmsystem med en sensor per rum, touchpanel och siren. Nyproduktionen är belägen på La Finca Golf . Det placeras bredvid den första golfbanan som vetter mot den 11: e fairwayen på La Finca Golf Course, ett av de mest emblematiska komplexen i sydöstra Spanien och en gemensam tillflyktsort för golfälskare. Detta komplex med inomhusparkering, gemensam pool och trädgårdsområden ligger bara 4 minuter från Algorfa, i Costa Blanca South, och är den perfekta platsen för dem som vill njuta av Medelhavets livsstil: närhet till stranden, golf och berg, omgiven av lugn, men med tillgång till alla typer av tjänster och fritidsområden. Några minuter från de vackraste stränderna på södra Costa Blanca och platser med exceptionell skönhet som Laguna Rosa de Torrevieja eller sanddynerna i Guardamar del Segura. Dess närhet och enkel tillgång till motorvägen AP-7 och de viktigaste nationella vägarna förbinder komplexet med många städer på Costa Blanca som Orihuela, Cartagena, Elche, Murcia och Alicante. Flygplatserna i Alicante och Murcia ligger mindre än 30 minuters bilresa bort med förbindelser till de viktigaste europeiska huvudstäderna.

Funktioner

Climate control

  • Luftkonditionering

Features

  • Dubbelglas
  • Takterass
  • dresser-wardrobe
    Inbyggda garderober

Furniture

  • Fullt möblerad

Setting

  • Nära till golf
  • Nära till havet
  • shanty-house-village-1
    Nära till stan
  • Nära småbåtshamn

Beläget i

Prisvärdhet

Beräkna dina månatliga bolånebetalningar

Din beräknade månadsbetalning

Bli förkvalificerad

Inköpskostnader

Vår kostnadskalkylator ger en uppskattning av alla kostnader som är involverade i att köpa ett hus i Spanien. Använd dessa siffror endast som en riktlinje: de faktiska siffrorna kommer att variera beroende på fastighetens läge och vilken bank du väljer, bland andra faktorer. Till summan måste du lägga till dina bolånebetalningar och comisión de apertura om din bank debiterar det.

Totala utgifter

Du kanske gillar dessa fastigheter också