Mark till salu i Marbella

Property ID: R5357872

€1,650,000

3,143 €/m2


525
5
beds
7
baths
0
terrace
953
plot

Located in the heart of Nueva Andalucía and nestled in the renowned Golf Valley, this exclusive plot and project is surrounded by prestigious golf courses such as Las Brisas, Los Naranjos, and Aloha Golf Club. The location offers perfect access to Puerto Banús, Marbella, and the beach, combining tranquility with convenience.
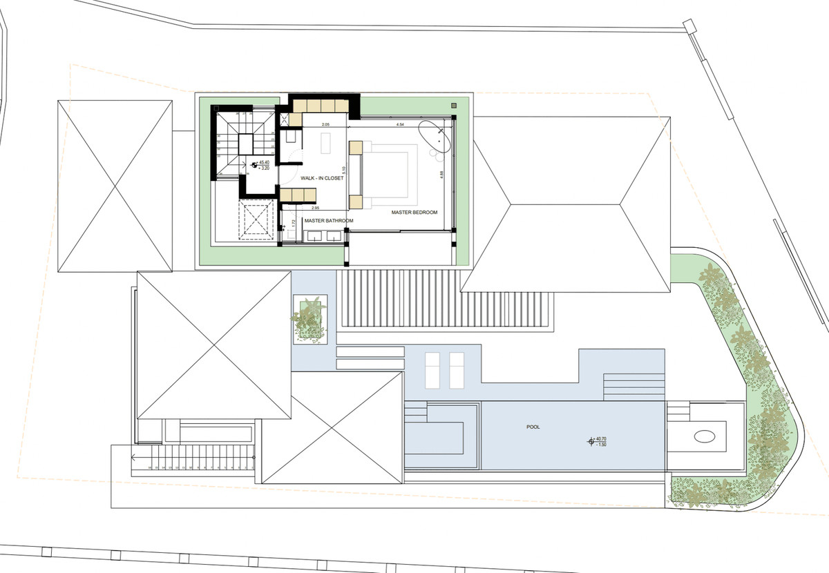
Villa Hayami, a project by Japandihome and designed by the acclaimed architectural firm Nmobe, represents the perfect combination of high-end architecture and refined elegance. Spread across three levels, the villa features five beautifully designed bedrooms, each with its own en-suite bathroom, six bathrooms in total, plus an additional guest toilet. With 525 square meters of sophisticated interior space, the design showcases natural materials and elegant finishes that exude timeless style.
The outdoor areas are equally impressive, with a 300 square meter terrace featuring a pool, jacuzzi, stylish lounge, and barbecue area, ideal for relaxing under the sun or entertaining guests with the stunning backdrop of Marbella's iconic mountain, La Concha.
The project has an approved construction license.


Funktioner

Climate control

  • Luftkonditionering
  • Centralvärme

Features

  • Privat terrass
  • dresser-drawers-5
    Förrråd
  • Eget badrum

Garden

  • Privat trädgård
  • Anlagd trädgård

Kitchen

  • Fullt utrustad

Parking

  • Garage

Pool

  • Privat pool

Security

  • Larmsystem

Views

  • Havsutsikt
  • Bergsutsikt
  • Golfutsikt
  • Trädgårdsutsikt

Beläget i

Prisvärdhet

Beräkna dina månatliga bolånebetalningar

Din beräknade månadsbetalning

Bli förkvalificerad

Inköpskostnader

Vår kostnadskalkylator ger en uppskattning av alla kostnader som är involverade i att köpa ett hus i Spanien. Använd dessa siffror endast som en riktlinje: de faktiska siffrorna kommer att variera beroende på fastighetens läge och vilken bank du väljer, bland andra faktorer. Till summan måste du lägga till dina bolånebetalningar och comisión de apertura om din bank debiterar det.

Totala utgifter

Du kanske gillar dessa fastigheter också