Marklägenhet, studio till salu i Torremolinos

Property ID: R5319853

€139,000

2,574 €/m2


54
1
beds
1
baths
0
terrace
0
plot

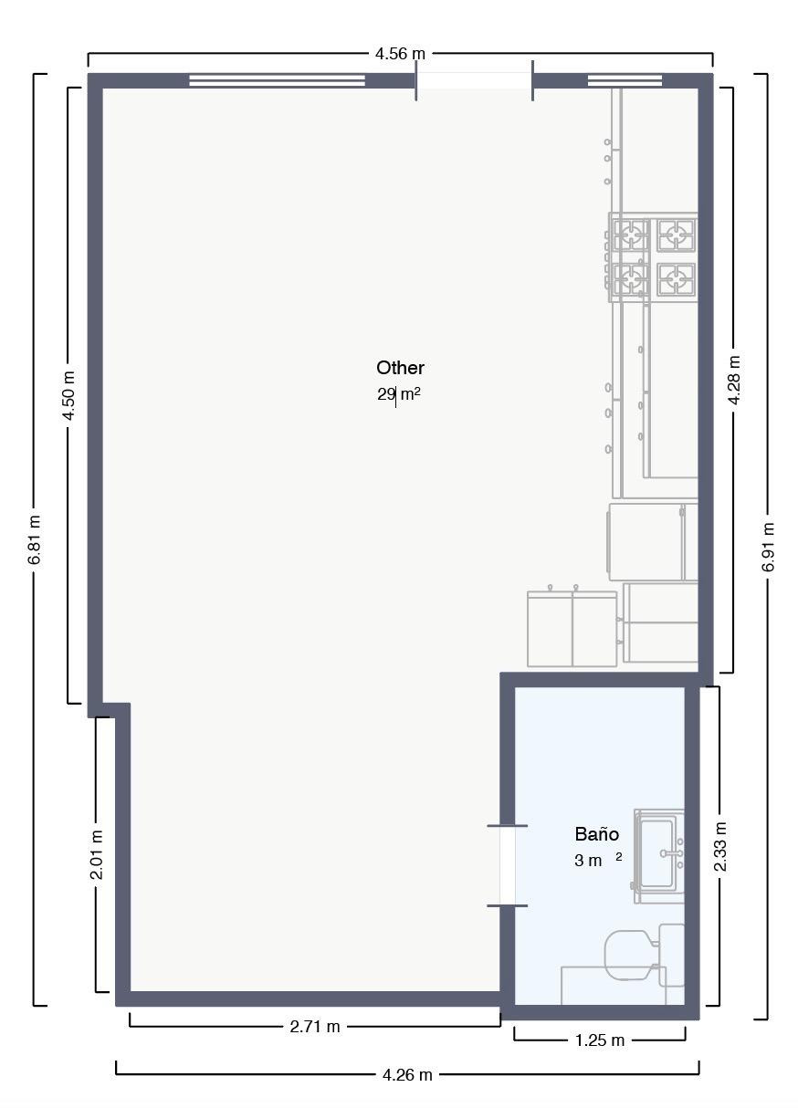
32 m2 studio in the heart of Torremolinos, specifically in the Congresos 1B building. This commercial space has been converted into a residence with all necessary documentation. The kitchen is equipped with appliances (ceramic hob, extractor hood, refrigerator, and washing machine). Air conditioning is also included. Located just steps from the bus station, Vithas Hospital, Plaza Costa del Sol, San Miguel Street, La Nogalera train station, and 10 minutes from the beach.

This property offers excellent rental potential.

In compliance with Royal Decree 218/2005 of the Andalusian Regional Government, dated October 11, consumers are hereby informed that the prices indicated DO INCLUDE THE REAL ESTATE AGENCY FEES but do not include expenses arising from the purchase of real estate according to current legislation (Property Transfer Tax, notary and land registry fees).
Consumers have the right to receive a copy of the Abbreviated Document or Information Sheet for the property, in accordance with Article 12 of Royal Decree 28/2005 of October 11, at our offices.


Funktioner

Climate control

  • Centralvärme

Condition

  • Perfekt

Features

  • lift
    Hiss

Furniture

  • Ej möblerad

Orientation

  • Norr

Beläget i

Prisvärdhet

Beräkna dina månatliga bolånebetalningar

Din beräknade månadsbetalning

Bli förkvalificerad

Inköpskostnader

Vår kostnadskalkylator ger en uppskattning av alla kostnader som är involverade i att köpa ett hus i Spanien. Använd dessa siffror endast som en riktlinje: de faktiska siffrorna kommer att variera beroende på fastighetens läge och vilken bank du väljer, bland andra faktorer. Till summan måste du lägga till dina bolånebetalningar och comisión de apertura om din bank debiterar det.

Totala utgifter

Du kanske gillar dessa fastigheter också