€995,000

2,787 €/m2


357
4
beds
3
baths
150
terrace
22000
plot

Modern Detached Villa in a Unique Location
A modern detached villa, less than 17 years old, situated in a truly unique spot. Located just 25 km from the beaches of Marbella and only 5 minutes from the charming village of Guaro! During construction in 2009, the Dutch owners at the time left nothing to chance. The property was built to Northern European standards, featuring fully insulated floors, walls, and roofs. Only the finest materials were used, resulting in a perfect and unique country villa.

Technical Highlights and Extras:
Comfort: Central heating and air conditioning in all rooms.
Quality: PVC window frames (tilt-and-turn) with double bulletproof glass, mosquito nets, and aluminum shutters.
Exterior: 92 outdoor light points (individually adjustable via timers) and 32 outdoor water taps.
Sustainability: Rainwater collection in an 8,000-liter reservoir.
Security: Automatic gate with camera system and CCTV surveillance around the entire property.
Facilities: Private sauna and Starlink internet connection.

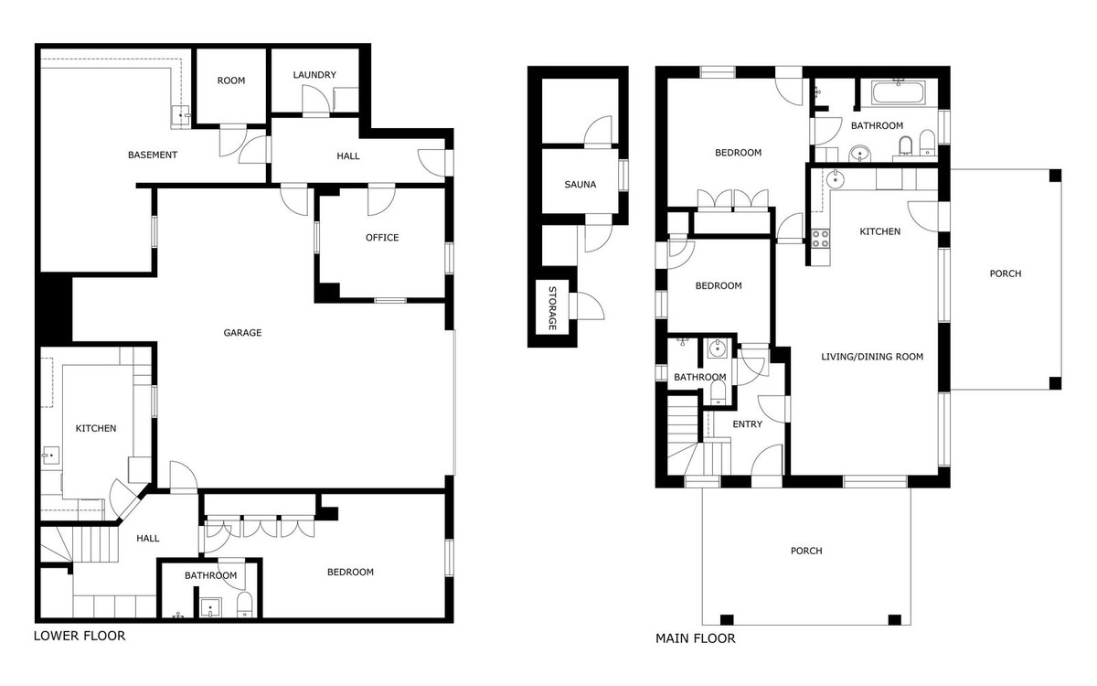
Beyond the technical sophistication, this is above all a fantastic, spacious villa with a living area of nearly 300 m², spread over two floors.
Through the veranda, you enter the central hall, which provides access to the living room, a guest toilet, and a guest bedroom. The living room is characterized by large windows that make you feel as if you are sitting inside a painting; the views are phenomenal in every direction. The living room features central heating, air conditioning, and a high-quality open-plan kitchen (German-made) with built-in Bosch appliances. You can also enjoy the stunning views from the dining area. The kitchen has its own door leading to the covered terrace on the side of the house.
On this same level, you will find the master bedroom with an ensuite bathroom and a large built-in wardrobe. This room offers direct access to the pool and breathtaking views.
A marble staircase leads to the lower level. Here you will find a guest apartment with an ensuite bathroom and its own spacious kitchen. Next to the guest quarters, passing through the massive garage (55 m²!), is a fourth bedroom, that can also be used as an office. Additionally, this level houses the technical room (with the pool pump) and a storage/workshop area of 30 m². Given the space and the existing plumbing, this floor offers ample possibilities to create 2 or 3 extra guest rooms—ideal for starting a B&B.

The terrace with the generous swimming pool is enchanting, offering views of the Sierra de las Nieves and the surrounding valleys. There is plenty of space around the pool for seating and sunbeds. Here you will also find the spacious sauna, an outdoor shower, and a toilet. A set of stairs leads to a private "hide-away" with a lounge chair—the perfect spot to enjoy the sunset with a glass of wine.
The plot exceeds 22,000 m². Behind the house is a large parking area that is also suitable for use as a helicopter landing pad. The garden is beautifully landscaped with cozy seating areas and masonry stairs throughout. Here, too, everything has been finished to perfection. Adjacent to the parking area is the storage for the gas bottles for the central heating.
In short: This villa is a rare find in the "campo." It offers quality and pure living pleasure in one of the most beautiful locations in the Guadalhorce Valley.


Funktioner

Climate control

  • Luftkonditionering
  • Varm A / C
  • Kall A / C
  • Centralvärme

Condition

  • Perfekt

Features

  • Täckt terrass
  • Privat terrass
  • WiFi
  • Bastu
  • Gästlägenhet
  • dresser-drawers-5
    Förrråd
  • home-improvement-12_1
    Tvättstuga
  • Eget badrum
  • Marmorgolv
  • Dubbelglas

Furniture

  • Delvis möblerad

Garden

  • Privat trädgård

Kitchen

  • Fullt utrustad

Orientation

  • Norr
  • Nordost
  • Öst
  • Sydöst
  • Söder
  • Sydväst
  • Väst
  • Nordväst

Parking

  • Garage
  • Täckt parkering
  • Mer än en parkering
  • Privat parkering

Pool

  • Privat pool

Security

  • Elektriska persienner
  • mobile-phone-blackberry-2
    Porttelefon
  • Larmsystem

Setting

  • Landsbygd

Utilities

  • wall-socket
    Elektricitet
  • Drickbart vatten
  • Telefon

Views

  • Bergsutsikt
  • Utsikt landskap
  • Panorama utsikt

Beläget i

Prisvärdhet

Beräkna dina månatliga bolånebetalningar

Din beräknade månadsbetalning

Bli förkvalificerad

Inköpskostnader

Vår kostnadskalkylator ger en uppskattning av alla kostnader som är involverade i att köpa ett hus i Spanien. Använd dessa siffror endast som en riktlinje: de faktiska siffrorna kommer att variera beroende på fastighetens läge och vilken bank du väljer, bland andra faktorer. Till summan måste du lägga till dina bolånebetalningar och comisión de apertura om din bank debiterar det.

Totala utgifter

Du kanske gillar dessa fastigheter också