Mark till salu i Sotogrande

Property ID: R5315077

€800,000

800 €/m2


1,000
0
beds
0
baths
0
terrace
3315
plot

Elevated plot with uninterrupted golf and lake views in Sotogrande Alto.
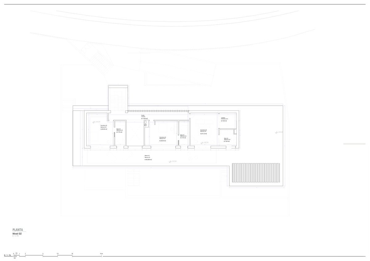
Located in the Almenara area of Sotogrande Alto, just steps from SO Sotogrande and within close proximity to the Sotogrande International School, this 3,315 m² plot enjoys a privileged south west orientation and open front views over the Alto Club golf course and its lake.
The plot is elevated, ensuring privacy and uninterrupted views, and is surrounded by high quality completed villas, consolidating the residential character of the area. Its orientation allows for optimal light throughout the day and ideal positioning of terraces, pool and main living areas.
With 33 percent buildability, the plot allows for approximately 1,000 m² of construction, offering the possibility to create a substantial contemporary residence. The sale includes a fully developed architectural project by Casasola Arquitectos, known for refined modern design and strong integration between architecture and landscape.
The project has already been granted building licence, allowing immediate commencement of construction. All utilities are onsite and a complete landscaping project is included in the sale, providing clarity and efficiency from day one.
Ownership is ready to transfer, making this a streamlined acquisition for a buyer seeking a prime location in Sotogrande Alto with immediate development potential and no planning uncertainty.
*The images presented are for reference only and may vary from the final product.


Funktioner

Climate control

  • Luftkonditionering
  • Centralvärme

Features

  • lift
    Hiss
  • dresser-wardrobe
    Inbyggda garderober
  • bus-2
    Nära transport
  • Privat terrass
  • Gym
  • dresser-drawers-5
    Förrråd
  • Daghem

Garden

  • Privat trädgård

Parking

  • Garage

Pool

  • Privat pool

Security

  • 24 timmars säkerhet

Setting

  • Nära till golf
  • Nära skolor

Views

  • Bergsutsikt
  • Golfutsikt
  • Panorama utsikt
  • Trädgårdsutsikt

Beläget i

Prisvärdhet

Beräkna dina månatliga bolånebetalningar

Din beräknade månadsbetalning

Bli förkvalificerad

Inköpskostnader

Vår kostnadskalkylator ger en uppskattning av alla kostnader som är involverade i att köpa ett hus i Spanien. Använd dessa siffror endast som en riktlinje: de faktiska siffrorna kommer att variera beroende på fastighetens läge och vilken bank du väljer, bland andra faktorer. Till summan måste du lägga till dina bolånebetalningar och comisión de apertura om din bank debiterar det.

Totala utgifter

Du kanske gillar dessa fastigheter också