Tomtmark för bostäder till salu i Velez-Malaga

Property ID: R5305549

€805,000

€/m2


0
0
beds
0
baths
0
terrace
945
plot

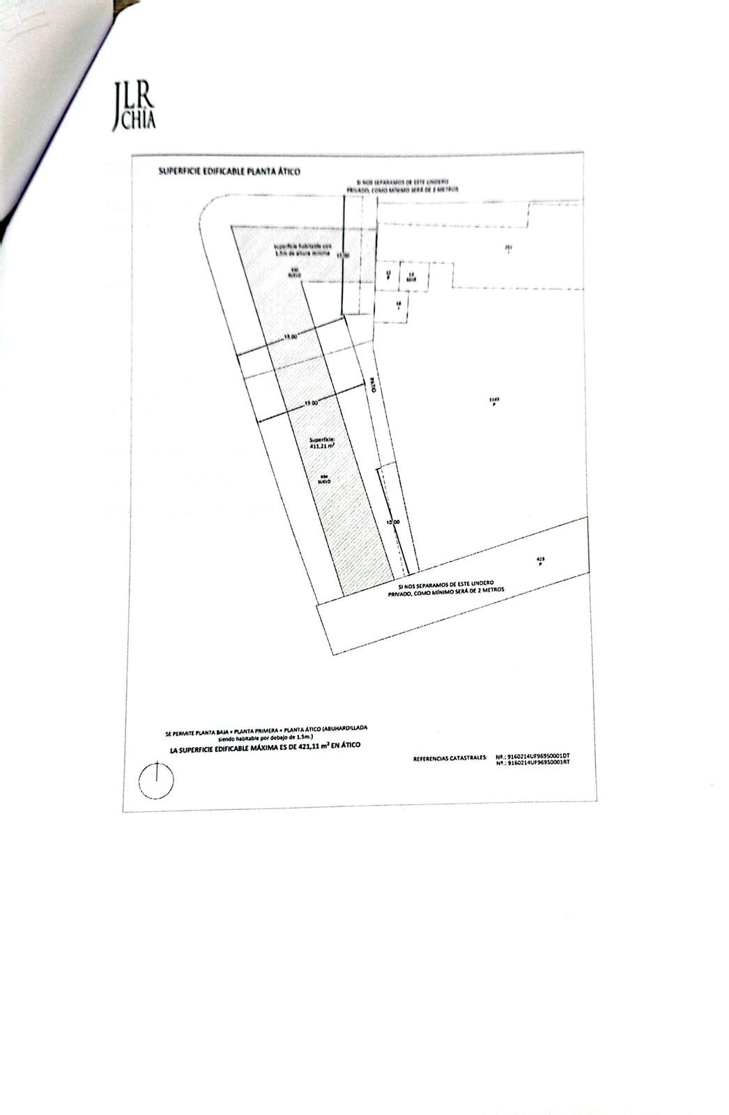
Two urban plots for sale in Almáyate with a total surface area of 945 m², marketed jointly, representing an excellent investment opportunity in a rapidly growing area of the municipality of Vélez-Málaga.

The plots have a preliminary project (anteproyecto) for the construction of multi-family residential housing, in accordance with the current municipal planning regulations of Vélez-Málaga. They are classified as CTP-1 Urban Land, allowing for the development of a residential project with strong profitability potential.

Located in a शांत and well-connected area, just a few minutes from the beach and with easy access to services, shops, and main transport routes, these plots offer ideal conditions for developers and investors looking to build a residential development on the Costa del Sol.

The indicated price does not include taxes or expenses. The purchase will be subject to Property Transfer Tax (ITP) at 7%, in addition to notary fees (approx. 0.3%–0.5%) and Land Registry fees (approx. 0.1%–0.3%) calculated on the purchase price.

The amounts provided are for information purposes only and may vary depending on each specific case.

For this property, the approximate costs will be:

Property Transfer Tax (7%): €56,350

Notary: between €2,415 (0.3%) and €4,025 (0.5%)

Land Registry: between €805 (0.1%) and €2,415 (0.3%)

The purchase of this property does not entail any real estate agency fees for the buyer.


Beläget i

Prisvärdhet

Beräkna dina månatliga bolånebetalningar

Din beräknade månadsbetalning

Bli förkvalificerad

Inköpskostnader

Vår kostnadskalkylator ger en uppskattning av alla kostnader som är involverade i att köpa ett hus i Spanien. Använd dessa siffror endast som en riktlinje: de faktiska siffrorna kommer att variera beroende på fastighetens läge och vilken bank du väljer, bland andra faktorer. Till summan måste du lägga till dina bolånebetalningar och comisión de apertura om din bank debiterar det.

Totala utgifter

Du kanske gillar dessa fastigheter också