Takvåning till salu i Almuñécar

Property ID: R5288815

€510,000

5,050 €/m2


101
3
beds
2
baths
0
terrace
0
plot

Penthouse på första linjen i Almuñécar.

Läget, läget, läget – bättre än så här kan det knappast bli.

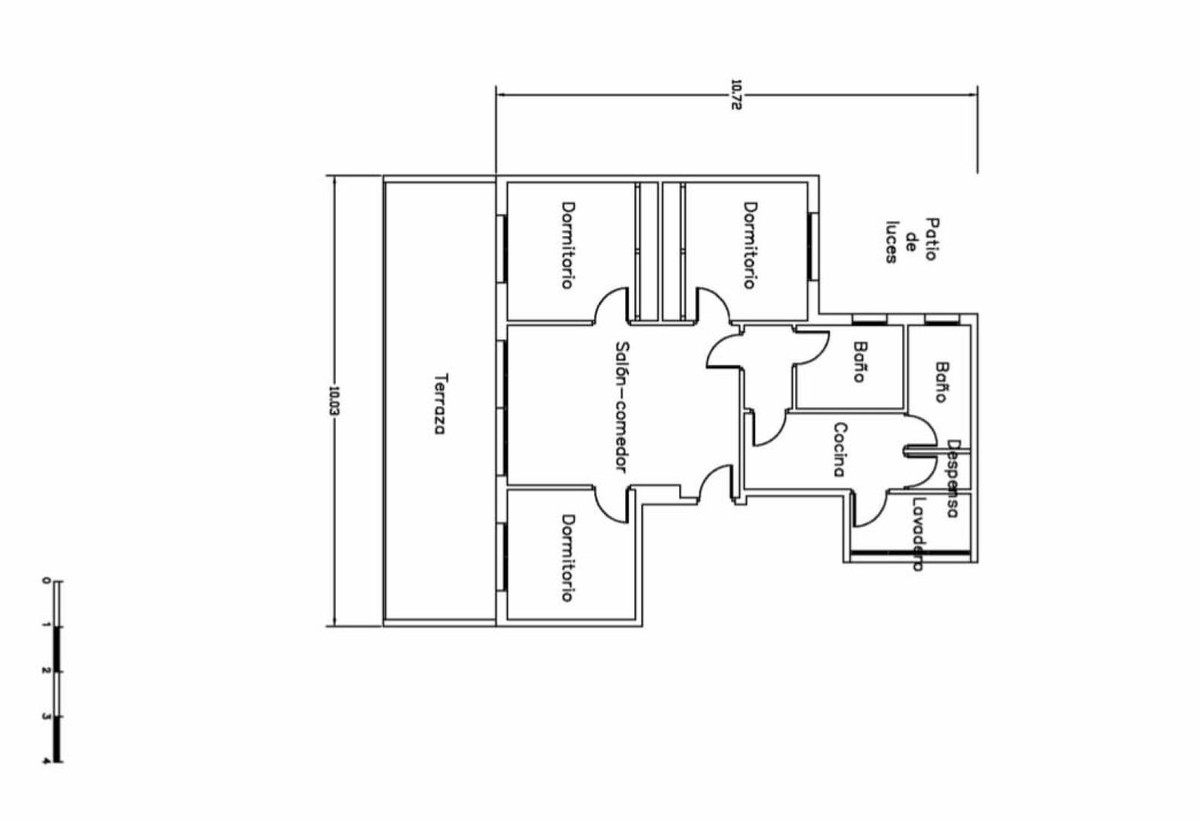
Penthouse på sjunde våningen med 180 graders utsikt över Medelhavet, centralt belägen och nära till allt. Lägenheten har 3 sovrum och 2 badrum, boyta på 76 kvm och en härligt stor terrass på 25 kvm. Hiss finns i fastigheten, bra tillgänglighet för rörelsehindrade.

Det stora vardagsrummet välkomnar dig när du kommer in i lägenheten, här finns även en matplats. Till höger har du det första badrummet och därefter köket, här finns även ett förråd och tvättstugan. I anslutning till köket ligger det andra badrummet, se planlösningen.

Tillbaka till vardagsrummet och till höger, har vi det första sovrummet. Därefter ytterligare ett sovrum med utgång till den stora terrassen, tänk att vakna upp till denna fantastiska utsikt. Det tredje sovrummet, har också utgång till terrassen och samma fina utsikt. Denna lägenhet måste upplevas på plats, boka en visning redan i dag.

Det tar en timme till Malaga flygplats med bil, och det finns också regelbunden busstrafik från Almuñécar. Det finns en 18-håls golfbana i Salobreña, belägen endast 25 minuters bilresa från huset. På vintern har du bara en och en halv timmes bilresa till Granada med skidåkning i Sierra Nevada, det bästa av två världar.


Funktioner

Climate control

  • Luftkonditionering

Condition

  • Bra

Features

  • lift
    Hiss
  • dresser-wardrobe
    Inbyggda garderober
  • bus-2
    Nära transport
  • Privat terrass
  • dresser-drawers-5
    Förrråd
  • Nära restaurang

Kitchen

  • Fullt utrustad

Parking

  • Parkering gata

Security

  • mobile-phone-blackberry-2
    Porttelefon

Setting

  • Beachfront
  • shanty-house-village-1
    Stad
  • Nära till golf
  • Nära till affärer
  • Nära till havet
  • shanty-house-village-1
    Nära till stan
  • Nära till skidåkning

Views

  • Havsutsikt
  • Panorama utsikt

Beläget i

Prisvärdhet

Beräkna dina månatliga bolånebetalningar

Din beräknade månadsbetalning

Bli förkvalificerad

Inköpskostnader

Vår kostnadskalkylator ger en uppskattning av alla kostnader som är involverade i att köpa ett hus i Spanien. Använd dessa siffror endast som en riktlinje: de faktiska siffrorna kommer att variera beroende på fastighetens läge och vilken bank du väljer, bland andra faktorer. Till summan måste du lägga till dina bolånebetalningar och comisión de apertura om din bank debiterar det.

Totala utgifter

Du kanske gillar dessa fastigheter också