Radhus till salu i Estepona

Property ID: R5284240

€799,000

3,196 €/m2


250
8
beds
4
baths
0
terrace
112
plot

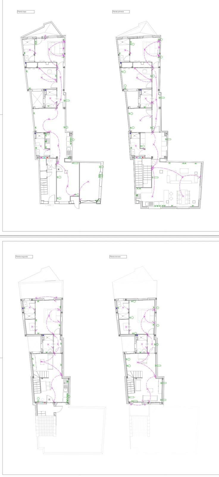
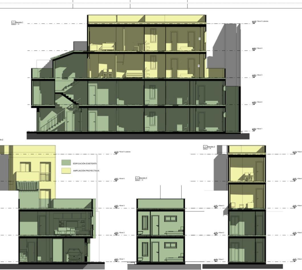
Fantastic opportunity to renovate in one of Estepona's most central areas, on a 122 m2 plot with a current 250 m2 building distributed across the ground, first, and second floors, and the possibility of adding another floor.
A permit is in place to add an attic level, which would bring the total to four levels. A detailed project report is available.

The current layout is as follows:
- Ground Floor (85 m2): spacious living room, four bedrooms, and two bathrooms. Spaces with abundant natural light and excellent potential for redistribution to suit your needs.

- First Floor (92 m2): living room, four bedrooms, and two bathrooms, offering great versatility to create spacious rooms or even two separate units.

- Second Floor: features two large terraces with incredible potential:
• 54 m2 terrace ideal for a chill-out area, private garden, or pool/solarium.

• 33 m2 terrace, perfect for an outdoor dining area or reading nook with views.

Project and permit for the renovation and expansion of 3 dwellings!

This property stands out for its large built area, its versatility, and the possibility of adding another floor, making it an exceptional investment for a family residential project, development, or holiday rental.

Don't miss this opportunity!


Funktioner

Climate control

  • Centralvärme

Condition

  • Perfekt

Features

  • wood-material-1
    Trägolv

Furniture

  • Ej möblerad

Utilities

  • Drickbart vatten

Beläget i

Prisvärdhet

Beräkna dina månatliga bolånebetalningar

Din beräknade månadsbetalning

Bli förkvalificerad

Inköpskostnader

Vår kostnadskalkylator ger en uppskattning av alla kostnader som är involverade i att köpa ett hus i Spanien. Använd dessa siffror endast som en riktlinje: de faktiska siffrorna kommer att variera beroende på fastighetens läge och vilken bank du väljer, bland andra faktorer. Till summan måste du lägga till dina bolånebetalningar och comisión de apertura om din bank debiterar det.

Totala utgifter

Du kanske gillar dessa fastigheter också