Fristående villa till salu i Benalmádena

Property ID: R5272795

€5,400,000

6,905 €/m2


782
4
beds
4
baths
213
terrace
1159
plot

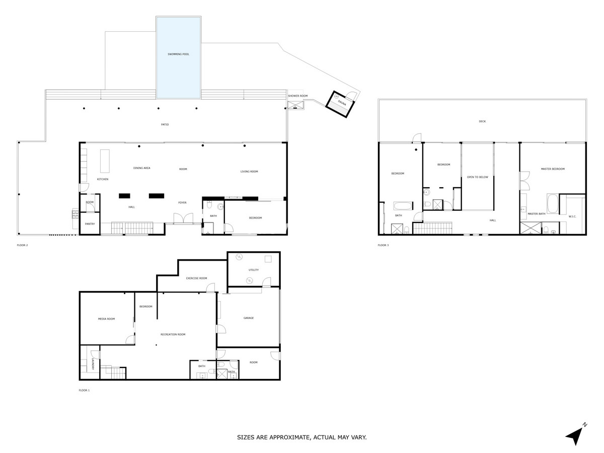
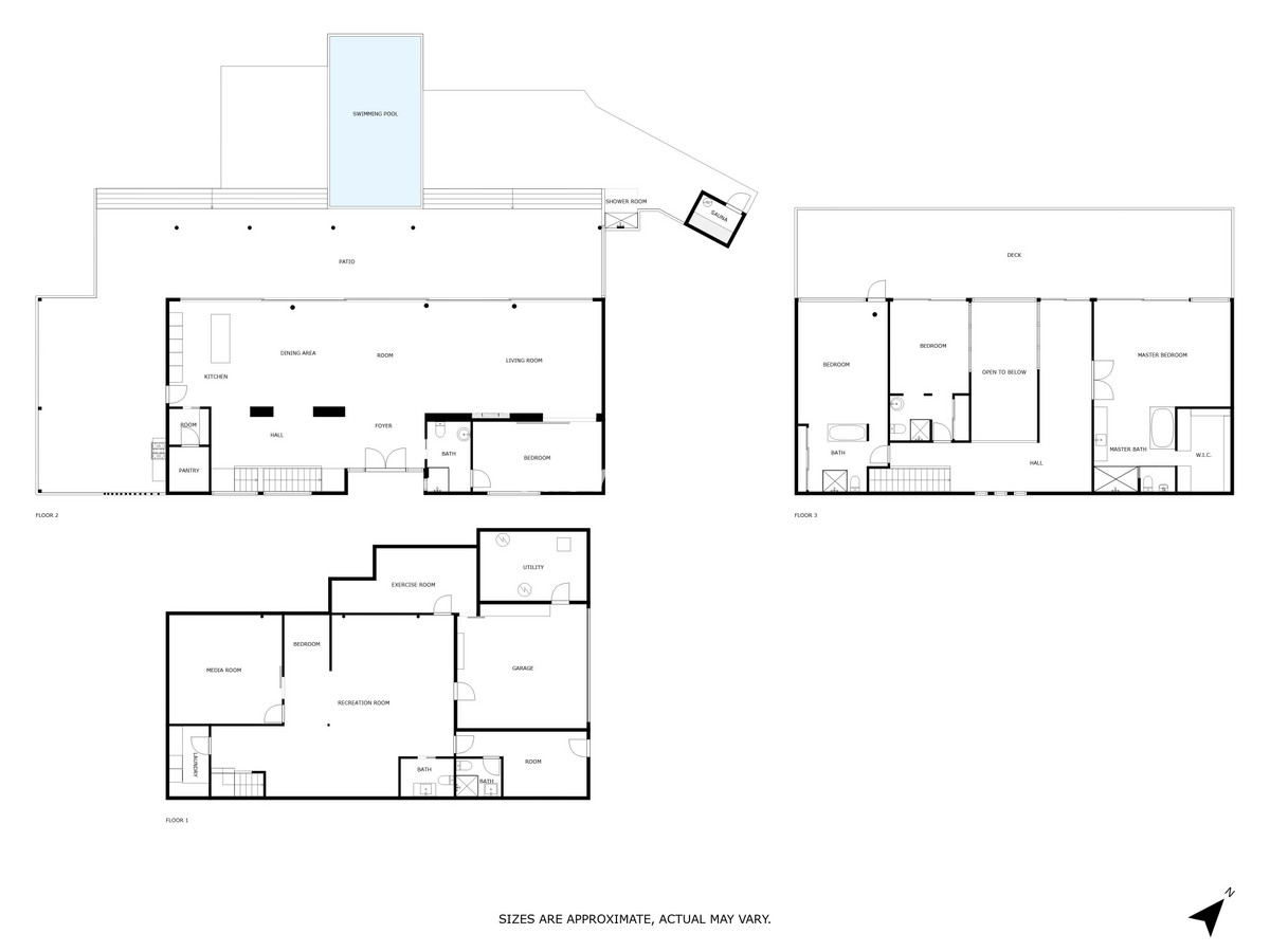
Nestled in the picturesque landscapes of El Higuerón, this unparalleled 5-bedroom, 5-bathroom villa is the epitome of modern elegance and timeless design. Boasting an array of splendid features and breathtaking views, this property redefines modern luxury in the heart of the Costa del Sol.

With it's sleek and contemporary architecture, this villa seamlessly blends with the natural beauty that surrounds it. The design emphasizes the use of natural light, creating a bright and airy atmosphere throughout the interior spaces.

Step inside, and you'll be greeted by expansive living areas that exude sophistication and comfort. The open-concept layout allows for seamless transitions from room to room, providing the ideal setting for both relaxation and entertainment.

One of the villa's most striking features is the infinity pool that seemingly merges with the Mediterranean horizon. Whether you're taking a refreshing dip or lounging on the expansive terrace, the panoramic views of the Mediterranean and Fuengirola are simply breathtaking. The fully glazed terrace provides comfort for enjoying the outdoors all year round.

Each of the five bedrooms is a sanctuary of its own. Spacious, elegantly designed, and featuring en-suite bathrooms, they offer the utmost in comfort and privacy for you and your guests.

This villa is not just a home; it's a sanctuary. Unwind in the sauna, watch your favorite movies in the cinema room, or challenge friends and family to a game in the dedicated game room. Every amenity has been thoughtfully designed to cater to your every need. Your vehicles are well taken care of with a secure and spacious two-car garage.

This exclusive villa in El Higuerón is more than just a property; it's a lifestyle. Experience the pinnacle of luxury living in the Reserva del Higueron, where modern design, natural light, Scandinavian decor and unparalleled amenities come together in perfect harmony. Make this villa your haven and enjoy a life of tranquility, sophistication, and absolute comfort.


Funktioner

Climate control

  • Luftkonditionering
  • Varm A / C
  • Kall A / C
  • Centralvärme
  • fireplace
    Öppen spis
  • Golvvärme

Condition

  • Perfekt

Features

  • Täckt terrass
  • dresser-wardrobe
    Inbyggda garderober
  • bus-2
    Nära transport
  • Privat terrass
  • WiFi
  • Gym
  • Bastu
  • board-game
    Spelrum
  • dresser-drawers-5
    Förrråd
  • home-improvement-12_1
    Tvättstuga
  • Eget badrum
  • wood-material-1
    Trägolv
  • Grillplats
  • Dubbelglas
  • Transfer buss
  • Nära kyrkan
  • cellar-3
    Källare

Furniture

  • Fullt möblerad

Garden

  • Privat trädgård

Kitchen

  • Fullt utrustad

Orientation

  • Sydöst
  • Söder
  • Sydväst

Parking

  • Garage
  • Privat parkering

Pool

  • Privat pool

Security

  • Gated Complex
  • Elektriska persienner
  • Larmsystem
  • 24 timmars säkerhet

Setting

  • shanty-house-village-1
    Stad
  • Strandnära
  • Nära till golf
  • Nära till hamn
  • Nära till affärer
  • Nära till havet
  • shanty-house-village-1
    Nära till stan
  • Nära skolor
  • Nära småbåtshamn
  • Urbanisation

Utilities

  • wall-socket
    Elektricitet

Views

  • Havsutsikt
  • Bergsutsikt
  • Utsikt hamn
  • Panorama utsikt
  • Trädgårdsutsikt
  • Utsikt pool
  • Stadsutsikt

Beläget i

Prisvärdhet

Beräkna dina månatliga bolånebetalningar

Din beräknade månadsbetalning

Bli förkvalificerad

Inköpskostnader

Vår kostnadskalkylator ger en uppskattning av alla kostnader som är involverade i att köpa ett hus i Spanien. Använd dessa siffror endast som en riktlinje: de faktiska siffrorna kommer att variera beroende på fastighetens läge och vilken bank du väljer, bland andra faktorer. Till summan måste du lägga till dina bolånebetalningar och comisión de apertura om din bank debiterar det.

Totala utgifter

Du kanske gillar dessa fastigheter också