Fristående villa till salu i Arroyo de La Miel

Property ID: R5203654

€1,690,000

2,986 €/m2


566
6
beds
5
baths
178
terrace
1944
plot

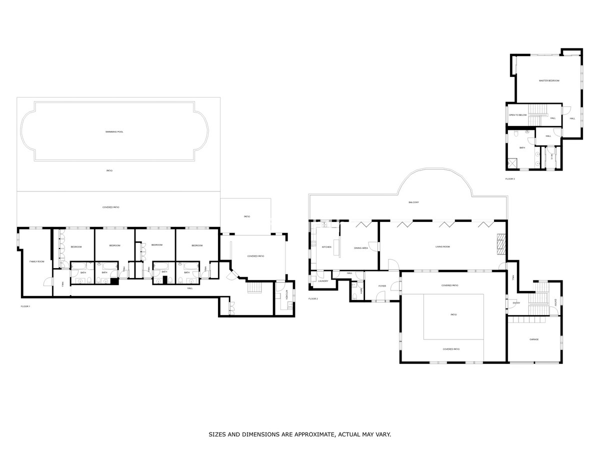
Your own private paradise, Villa Palmeras, in the middle of Costa del Sol. This property hides a huge amount of wonderful details. The entrance floor has a large hall, dining room, a kitchen, a utility room, lots of terrace space, a large courtyard, a two-car garage and an entrance to the north wing of the building, which has a huge suite with its own bathroom, a walk-in closet and its own terrace. There are 5 bedrooms on the ground floor, each with their own bathroom. In addition, there is one separate room, as well as a bathroom for guests and, of course, access to the pool area.

You will not have a sense of being cramped in this place. Inside and out you have a lot of space everywhere. The plot is a so-called double plot. The orientation of the house is towards the south and the swimming pool area gets sun all day. The pool is lit, so it's amazing even at dusk, and there's also a separate shower. The building is in very good condition, as a large amount of money has been spent on renovations and upgrades. There is a wonderful, well-maintained garden with an automatic irrigation system.

The location is peaceful, there is a supermarket and schools nearby, and the services of Arroyo de la Miel and the train station are about a 15-minute walk away. The lovely Benalmádena Pueblo is only a 5 minute drive away, the beaches 10 minutes away and Benalmádena Marina 15 minutes away.

This is our exclusive listing. Contact us and we will book a viewing for you!


Funktioner

Climate control

  • Luftkonditionering

Condition

  • Bra

Features

  • Täckt terrass
  • dresser-wardrobe
    Inbyggda garderober
  • bus-2
    Nära transport
  • Privat terrass
  • Eget badrum
  • Bar
  • Dubbelglas

Furniture

  • Valfri

Garden

  • Privat trädgård

Kitchen

  • Fullt utrustad

Orientation

  • Söder

Parking

  • Mer än en parkering
  • Privat parkering

Pool

  • Privat pool

Security

  • Larmsystem

Setting

  • Nära till golf
  • Nära till hamn
  • Nära till affärer
  • shanty-house-village-1
    Nära till stan
  • Nära skolor

Views

  • Bergsutsikt
  • Trädgårdsutsikt
  • Utsikt pool
  • Stadsutsikt

Beläget i

Prisvärdhet

Beräkna dina månatliga bolånebetalningar

Din beräknade månadsbetalning

Bli förkvalificerad

Inköpskostnader

Vår kostnadskalkylator ger en uppskattning av alla kostnader som är involverade i att köpa ett hus i Spanien. Använd dessa siffror endast som en riktlinje: de faktiska siffrorna kommer att variera beroende på fastighetens läge och vilken bank du väljer, bland andra faktorer. Till summan måste du lägga till dina bolånebetalningar och comisión de apertura om din bank debiterar det.

Totala utgifter

Du kanske gillar dessa fastigheter också