Finca - Cortijo till salu i Alhaurín de la Torre

Property ID: R5202568

€595,000

1,462 €/m2


407
6
beds
4
baths
28
terrace
2770
plot

This impressive property is situated in an amazing location with views to the bay of Málaga and the Sierra de Mijas mountains.

Less than 4km to the beautiful village of Alhaurín de la Torre, the well-known Lauro Golf course less than a 5-minute drive away, only 20 minutes to Málaga city and the airport, this property offers a very spacious family home or an opportunity for a rural B&B business.

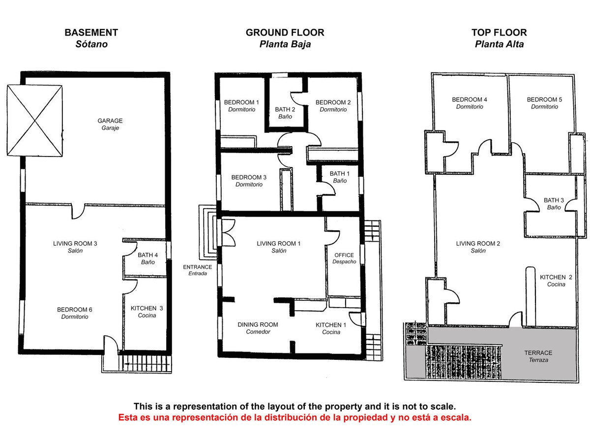
The house is distributed over 3 independent living areas.

Access to the 2-bedroom apartment is via an external staircase. The apartment has an open plan living room with kitchen / dining area, shared bathroom, and a private terrace from where you can enjoy incredible views to the sea and mountains.

The ground floor benefits from a spacious living room with fireplace, kitchen / diner, 4 bedrooms (master ensuite), and a guest bathroom. A covered porch offers a great further dining area with views to the bay of Málaga.

The 155m² basement has its own access and offers either a huge storage area or an independent living area with bathroom. The garage has space for 2 or 3 cars. Adjacent to the house is a separate viewing area, which if required would offer more parking.

To the rear of the house is the very private terraced area with swimming pool. The garden offers privacy as there are no immediate neighbours and boasts views to the bay of Málaga.


Funktioner

Climate control

  • Luftkonditionering
  • Centralvärme
  • fireplace
    Öppen spis

Condition

  • Bra

Features

  • Täckt terrass
  • Privat terrass
  • Gästlägenhet
  • Gästhus
  • dresser-drawers-5
    Förrråd
  • Eget badrum
  • Dubbelglas
  • cellar-3
    Källare

Furniture

  • Ej möblerad

Garden

  • Privat trädgård

Kitchen

  • Fullt utrustad

Orientation

  • Norr

Parking

  • Garage
  • Privat parkering

Pool

  • Privat pool

Setting

  • Landsbygd

Utilities

  • wall-socket
    Elektricitet
  • Drickbart vatten

Views

  • Havsutsikt
  • Bergsutsikt
  • Utsikt landskap

Beläget i

Prisvärdhet

Beräkna dina månatliga bolånebetalningar

Din beräknade månadsbetalning

Bli förkvalificerad

Inköpskostnader

Vår kostnadskalkylator ger en uppskattning av alla kostnader som är involverade i att köpa ett hus i Spanien. Använd dessa siffror endast som en riktlinje: de faktiska siffrorna kommer att variera beroende på fastighetens läge och vilken bank du väljer, bland andra faktorer. Till summan måste du lägga till dina bolånebetalningar och comisión de apertura om din bank debiterar det.

Totala utgifter

Du kanske gillar dessa fastigheter också