
463 €/m2
Great Opportunity for Investors!
Plot in La Cala Golf, strategically located next to the prestigious golf course.
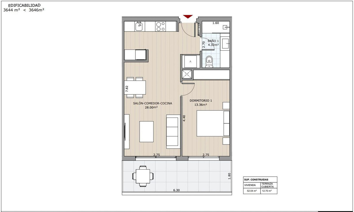
This is a plot designated for Equipment/Commercial use, with a total surface area of m² and 3,650 m² of buildable space, with a viable project for the construction of up to 51 tourist apartments.
There is also the possibility of selling these apartments individually to third-party investors through shares, with comprehensive management provided by a tour operator.
In addition, its prime location makes it a versatile space, also ideal for other projects such as a supermarket, gas station, or other highly demanded services in the area.
Guaranteed feasibility. A safe investment in one of the most promising areas of the Costa del Sol.
Funktioner
Setting
-
Frontline Golf
-
Nära till golf
Views
-
Bergsutsikt
-
Golfutsikt
Beläget i
Prisvärdhet
Beräkna dina månatliga bolånebetalningar
Din beräknade månadsbetalning
Bli förkvalificeradInköpskostnader
Vår kostnadskalkylator ger en uppskattning av alla kostnader som är involverade i att köpa ett hus i Spanien. Använd dessa siffror endast som en riktlinje: de faktiska siffrorna kommer att variera beroende på fastighetens läge och vilken bank du väljer, bland andra faktorer. Till summan måste du lägga till dina bolånebetalningar och comisión de apertura om din bank debiterar det.