Kommersiella Lokaler till salu i Cancelada

Property ID: R4982077

€600,000

668 €/m2


898
0
beds
0
baths
328
terrace
0
plot

Located in the Cancelada area, in East Estepona, these commercial premises offer a unique opportunity to establish a business in a strategic environment. With a total built area of 898 m², including 569.75 m² of interiors and 328.75 m² of terraces, this set of premises stands out for its incredible open views, including terraces with sea views. The proximity to essential services such as schools, shops, restaurants, public transport, and golf courses, as well as the beach and the city center, makes it a privileged location.

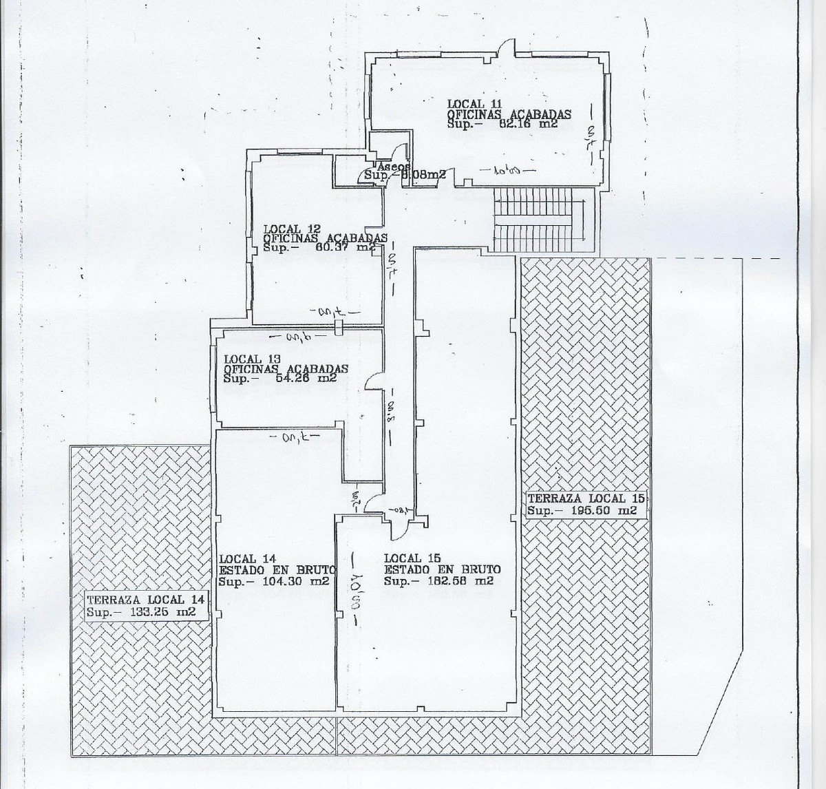
The asset package consists of a set of six premises distributed over two floors. On the first floor, there are four premises, three of which are fully equipped for office use, with areas of 82.16 m², 60.37 m², and 54.26 m² respectively. The fourth premise, in its raw state, offers 104.30 m² of interior space and a terrace of 133.26 m². Additionally, on this same floor, there is another raw premise with 182.58 m² of interiors and a large terrace of 195.50 m². On the second floor, there is an additional premise finished for office use with an area of 86.08 m², ideal for administrative or commercial activities.

The terraces, totaling 328.75 m², offer a versatile space that can be used for various outdoor activities, events, or as a relaxation area. These outdoor areas, along with the panoramic and urban views, add value to the premises, making this set of premises an attractive option for different types of businesses.

Among the extras that complete this property, there is a private garage with a capacity for 10 vehicles, ensuring convenience and security for employees and clients. Although some of the premises require renovation, this feature allows customization of the spaces according to the specific needs of the business. The strategic location, along with the features and potential of the premises, make this property an interesting investment in one of the most dynamic areas of Estepona.


Funktioner

Condition

  • Renovering krävs

Features

  • bus-2
    Nära transport

Parking

  • Mer än en parkering
  • Privat parkering

Setting

  • Nära till golf
  • Nära till affärer
  • Nära till havet
  • shanty-house-village-1
    Nära till stan
  • Nära skolor

Views

  • Havsutsikt
  • Panorama utsikt
  • Stadsutsikt

Beläget i

Prisvärdhet

Beräkna dina månatliga bolånebetalningar

Din beräknade månadsbetalning

Bli förkvalificerad

Inköpskostnader

Vår kostnadskalkylator ger en uppskattning av alla kostnader som är involverade i att köpa ett hus i Spanien. Använd dessa siffror endast som en riktlinje: de faktiska siffrorna kommer att variera beroende på fastighetens läge och vilken bank du väljer, bland andra faktorer. Till summan måste du lägga till dina bolånebetalningar och comisión de apertura om din bank debiterar det.

Totala utgifter

Du kanske gillar dessa fastigheter också