Radhus till salu i San Roque Club

Property ID: R4980715

€799,000

2,854 €/m2


280
3
beds
2
baths
104
terrace
188
plot

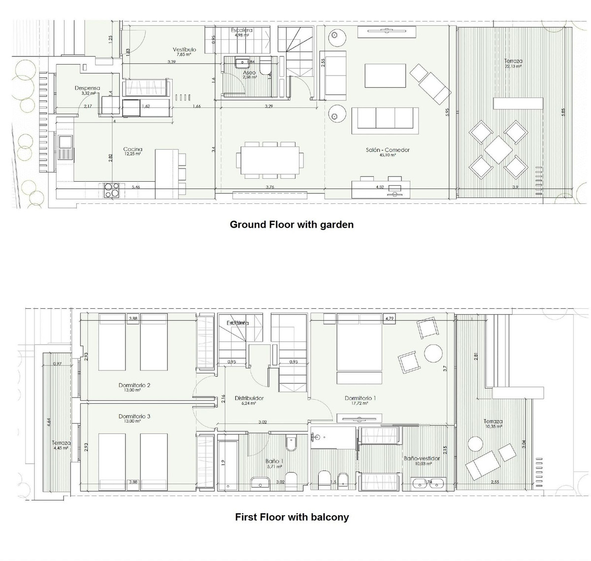
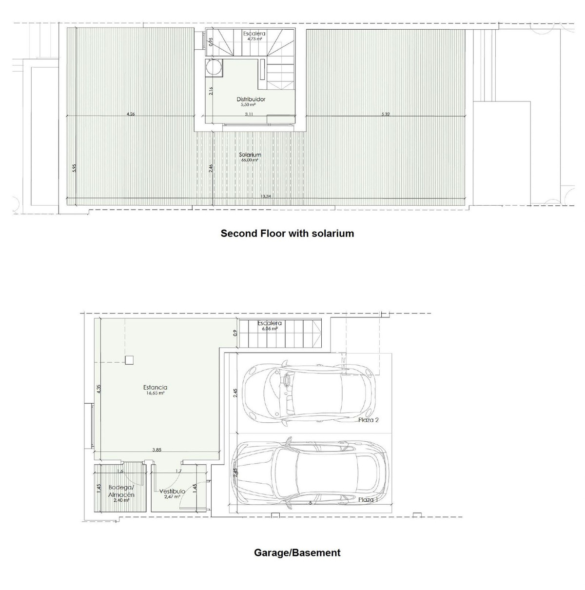
This exceptional townhouse, completed in 2022, offers contemporary living with stunning views of the prestigious San Roque Golf Club. With 180 m² of usable space, whether you're looking for a dream vacation home or a permanent residence, this property has it all. Featuring 3 spacious bedrooms, a stylish living and dining area, an open-concept kitchen, 2 bathrooms, a guest toilet, as well as storage space and 2 garage spaces, this home combines comfort and practicality.

The ground floor boasts a bright and airy living room that opens up to a large west-facing terrace and private garden, perfect for outdoor gatherings, with stunning views of the golf course. The sleek, modern kitchen is fully equipped with high-end appliances. Also on this level, you'll find a convenient guest WC and a useful storage room. Upstairs, the master bedroom comes with an en-suite bathroom and a private glazed balcony overlooking the golf course. Two additional well-sized bedrooms share a bathroom with a bathtub, and have access to a balcony with views of the community pool.

The spacious rooftop terrace, offers panoramic views of the sparkling sea, the well-maintained golf course, and the community area. Large, modern windows with aluminum frames flood the home with natural light, while an energy-efficient heat pump system ensures comfort throughout the year.

Situated in a secure, gated community with 24-hour security, this property offers both luxury and peace of mind. The complex features a gym, sauna, and a communal pool, all surrounded by beautifully landscaped gardens and cork oak trees. Located in a peaceful setting, it's just a short drive from Alcaidesa Beach and Sotogrande Marina.

This is a rare opportunity to live in one of the most sought-after locations in Spain. Don't miss your chance to own this exceptional property!


Funktioner

Climate control

  • Luftkonditionering

Condition

  • Perfekt

Features

  • Täckt terrass
  • dresser-wardrobe
    Inbyggda garderober
  • Privat terrass
  • Takterass
  • Gym
  • dresser-drawers-5
    Förrråd
  • home-improvement-12_1
    Tvättstuga
  • Eget badrum
  • cellar-3
    Källare

Garden

  • Gemensam trädgård
  • Privat trädgård

Kitchen

  • Fullt utrustad

Orientation

  • Väst

Parking

  • Garage
  • Mer än en parkering

Pool

  • Gemensam pool

Security

  • Gated Complex
  • 24 timmars säkerhet
  • saving-safe-1
    Safe

Setting

  • Frontline Golf
  • Nära till golf
  • Urbanisation

Views

  • Havsutsikt
  • Golfutsikt
  • Trädgårdsutsikt

Beläget i

Prisvärdhet

Beräkna dina månatliga bolånebetalningar

Din beräknade månadsbetalning

Bli förkvalificerad

Inköpskostnader

Vår kostnadskalkylator ger en uppskattning av alla kostnader som är involverade i att köpa ett hus i Spanien. Använd dessa siffror endast som en riktlinje: de faktiska siffrorna kommer att variera beroende på fastighetens läge och vilken bank du väljer, bland andra faktorer. Till summan måste du lägga till dina bolånebetalningar och comisión de apertura om din bank debiterar det.

Totala utgifter

Du kanske gillar dessa fastigheter också