Tomtmark för bostäder till salu i Benalmadena Pueblo

Property ID: R4927423

€295,000

€/m2


0
0
beds
0
baths
0
terrace
290
plot

Byggnadstomt med projekt i Rancho Domingo, Benalmádena Pueblo. Mycket attraktivt läge på hörntomt i slutet av en återvändsgränd nära byn med alla möjliga bekvämligheter.

Projektet som är klart för sista steget i bygglovsprocessen, består av en fristående villa med privat pool och garage. Det är planerat för källare, bottenvåning och förstavåning, med ett garage för två fordon samt en pool. Den har inriktats så att huvudvyerna riktas mot de punkter där det inte finns några byggnader, vilket ökar känslan av avskildhet.

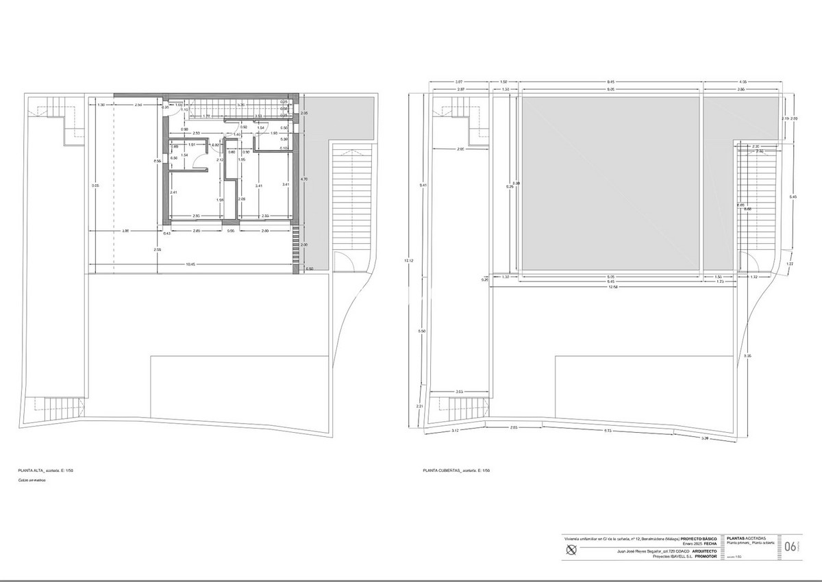
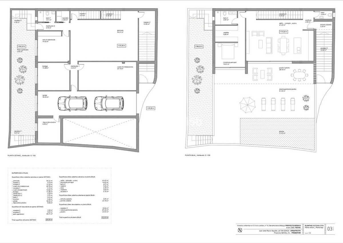
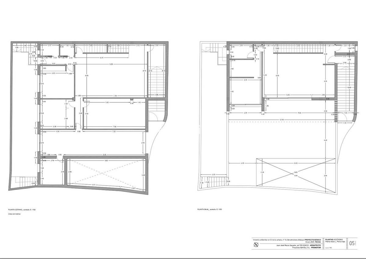
Källarplan med gym, förråd, installationsrum, strykrum, vinkällare, badrum 1, tvättstuga, garage och uteplats. Total bruksyta källare 223,97 m2.
Bottenvåning med vardagsrum, matsal, kök, master bedroom, badrum 2, omklädningsrum, toalett, hall, täckt entré, täckt veranda och pool. Total nyttjandeyta bottenplan 212,43 m2. Sluten bebyggd yta på bottenplan 89,60 m2.
Första våningen med sovrum 1, sovrum 2, hall, badrum 3, badrum 4, täckt terrass och öppen terrass. Total nyttjandeyta första våningen 83,10 m2. Sluten bebyggd yta på första våningen 46,91 m2
Totalt beräknad bruksyta 519,50 m2. Total bebyggd yta beräknad på stadsbyggnadsnivå 136,51 m2.

Den planerade byggnaden är belägen i bebyggelsens konsoliderade stadsmiljö. Tomterna i området är antingen byggda eller på väg att byggas.


Funktioner

Condition

  • Perfekt
  • Bra

Orientation

  • Sydöst
  • Söder
  • Sydväst
  • Väst

Setting

  • shanty-house-village-1
    Stad
  • shanty-house-village-1
    By
  • Nära till golf
  • Nära till affärer
  • shanty-house-village-1
    Nära till stan
  • Nära skolor
  • Urbanisation

Views

  • Trädgårdsutsikt
  • Stadsutsikt
  • Utsikt gata

Beläget i

Prisvärdhet

Beräkna dina månatliga bolånebetalningar

Din beräknade månadsbetalning

Bli förkvalificerad

Inköpskostnader

Vår kostnadskalkylator ger en uppskattning av alla kostnader som är involverade i att köpa ett hus i Spanien. Använd dessa siffror endast som en riktlinje: de faktiska siffrorna kommer att variera beroende på fastighetens läge och vilken bank du väljer, bland andra faktorer. Till summan måste du lägga till dina bolånebetalningar och comisión de apertura om din bank debiterar det.

Totala utgifter

Du kanske gillar dessa fastigheter också