 
  €/m2
Located on a peaceful street in the vibrant town of Alhaurín el Grande, this prime urban plot presents a fantastic opportunity to build your dream home in an unbeatable location. Just a short stroll from charming cafés, boutique shops, and some of the area's finest restaurants, you'll enjoy the perfect balance of tranquillity and lively town life.
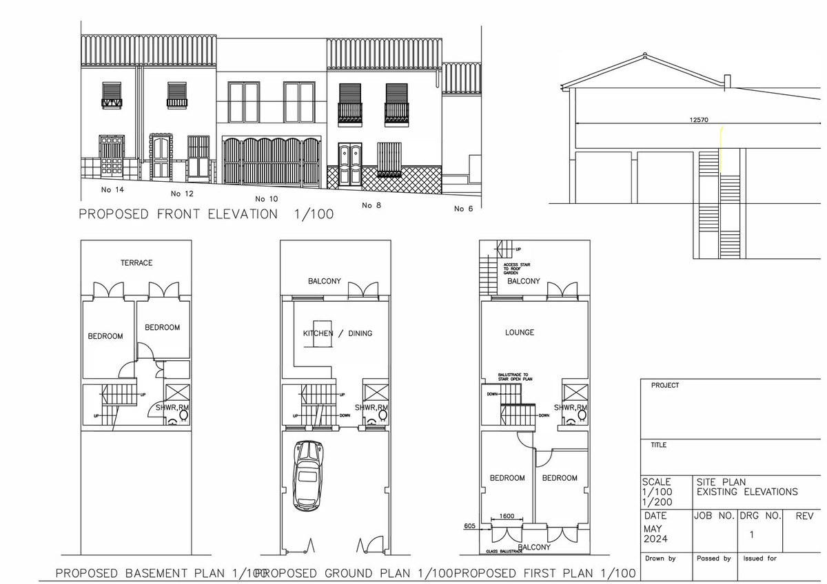
With the potential to construct a stylish two-story home complete with a basement and a stunning roof terrace, this plot offers endless possibilities. A preliminary design is available to spark your imagination, showcasing what could be your future residence in this sought-after Andalusian gem.
Seize this rare chance to create your perfect home in a thriving community with all amenities at your fingertips!
Funktioner
Orientation
- 
Söder
Setting
- 
Stad
- 
Försäljningsområde
Beläget i
Prisvärdhet
Beräkna dina månatliga bolånebetalningar
Din beräknade månadsbetalning
Bli förkvalificeradInköpskostnader
Vår kostnadskalkylator ger en uppskattning av alla kostnader som är involverade i att köpa ett hus i Spanien. Använd dessa siffror endast som en riktlinje: de faktiska siffrorna kommer att variera beroende på fastighetens läge och vilken bank du väljer, bland andra faktorer. Till summan måste du lägga till dina bolånebetalningar och comisión de apertura om din bank debiterar det.
 
   
   
   
   
   
   
   
   
   
   
   
  