Fristående villa till salu i Sotogrande Alto

Property ID: R4631638

€3,795,000

5,664 €/m2


670
4
beds
5
baths
232
terrace
3500
plot

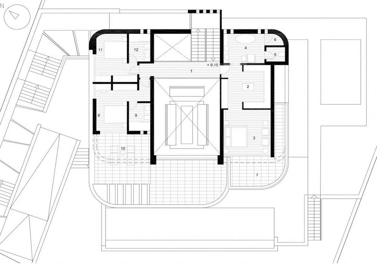
Planlös modern ekologisk villa i La Reserva de Sotogrande med fantastisk panoramautsikt och kommer att ha 4 sovrum med 4 badrum och en gästtoalett.
Denna fastighet kommer att byggas på 3 våningar och bestå av;
Källare: garage, installationsrum, förråd, distributör, maskinrum för vattenfall, vardagsrum, biljardrum, 1 sovrum med fönster i full storlek och naturligt ljus, eget badrum, biorum, poolinstallationsrum och en Zen uteplats.
Bottenvåning: entréhall med distributör, gästtoalett, skafferi/tvättstuga, fullt utrustat kök, matsal, vardagsrum, vardagsrum, 1 sovrum med eget badrum, pool, chill-out, BBQ och trädgård, terrasser och ca överbyggd terrass.
Första våningen; distributör, omklädningsrum, sovrum med Home Spa, toalett, dusch och terrass, ett annat badrum med eget badrum och terrass.
Som du kan se finns det ingen hiss i planerna men om kunden vill ha detta kommer det att tillhandahållas utan extra kostnad och kommer att öka den totala byggda ytan med ca 20,00 m2.
Bilder på badrum och kök är bara exempel på hur det kan se ut, men det slutliga valet är kundens!
Exempel på några av specifikationerna;
- Högisolerat källargolv och tak med JACKODUR eller liknande
- Isolerade hålväggar
- Invändiga och utvändiga golvplattor från GRESPANIA 600x600 - 800x800 - 1200x1200 (valfri färg och storlek)
- Badrumsväggar med COVERLAM plattor 2700X1200 (valfri färg)
- Badrum från ROCA
- Aerotermi/luftkonditionering
- Hiss från Schindler
- Golvvärme i hela villan
- Takhöga fönster med nedsänkt spår, 5+5/chamber/6+6
- Takhöga och 1 meter breda dörrar
- Takhög svängdörr och 1,50 bred
- Fullt utrustat kök med dörrar med aluminiumram och utrustat med COVERLAM (valfri färg)
- Ö med COVERLAM 3600X1600 inga synliga skarvar
- Vitvaror från Bosch eller AEG (konstruktörens val)
- Stickproppar, strömbrytare och dimmers från NIESSEN
- Uppvärmd pool
- 20 voltaiska paneler
- 2 litiumbatterier på vardera 10 kW
- Laddare för bil
- Domótica

Vi är ett byggföretag, Key-in-Hand, som kan designa och konstruera alla möjligheter du kan tänka dig. Om du inte ser en design av oss som du gillar designar vi en helt ny villa för dig enligt dina idéer och input.
Även om vi föredrar att bygga ekologiskt, kan vi bygga från traditionell konstruktion till ekologiska konstruktioner, allt beror på dig.


Funktioner

Climate control

  • Luftkonditionering
  • Varm A / C
  • Kall A / C
  • fireplace
    Öppen spis
  • Golvvärme
  • Golvvärme badrum

Features

  • Täckt terrass
  • lift
    Hiss
  • dresser-wardrobe
    Inbyggda garderober
  • Privat terrass
  • Takterass
  • WiFi
  • board-game
    Spelrum
  • Gästlägenhet
  • dresser-drawers-5
    Förrråd
  • home-improvement-12_1
    Tvättstuga
  • Eget badrum
  • Grillplats
  • Dubbelglas
  • Domotik
  • Nära restaurang
  • cellar-3
    Källare
  • Fiber

Orientation

  • Öst
  • Sydöst
  • Söder
  • Sydväst
  • Väst

Pool

  • Privat pool
  • Uppvärmd pool

Setting

  • Nära till golf
  • Nära skolor
  • Nära till skog
  • Urbanisation

Views

  • Bergsutsikt
  • Utsikt landskap
  • Panorama utsikt
  • Trädgårdsutsikt
  • Utsikt pool

Beläget i

Prisvärdhet

Beräkna dina månatliga bolånebetalningar

Din beräknade månadsbetalning

Bli förkvalificerad

Inköpskostnader

Vår kostnadskalkylator ger en uppskattning av alla kostnader som är involverade i att köpa ett hus i Spanien. Använd dessa siffror endast som en riktlinje: de faktiska siffrorna kommer att variera beroende på fastighetens läge och vilken bank du väljer, bland andra faktorer. Till summan måste du lägga till dina bolånebetalningar och comisión de apertura om din bank debiterar det.

Totala utgifter

Du kanske gillar dessa fastigheter också