Fristående villa till salu i Riviera del Sol

Property ID: R4606627

€2,925,000

6,145 €/m2


476
9
beds
11
baths
305
terrace
977
plot

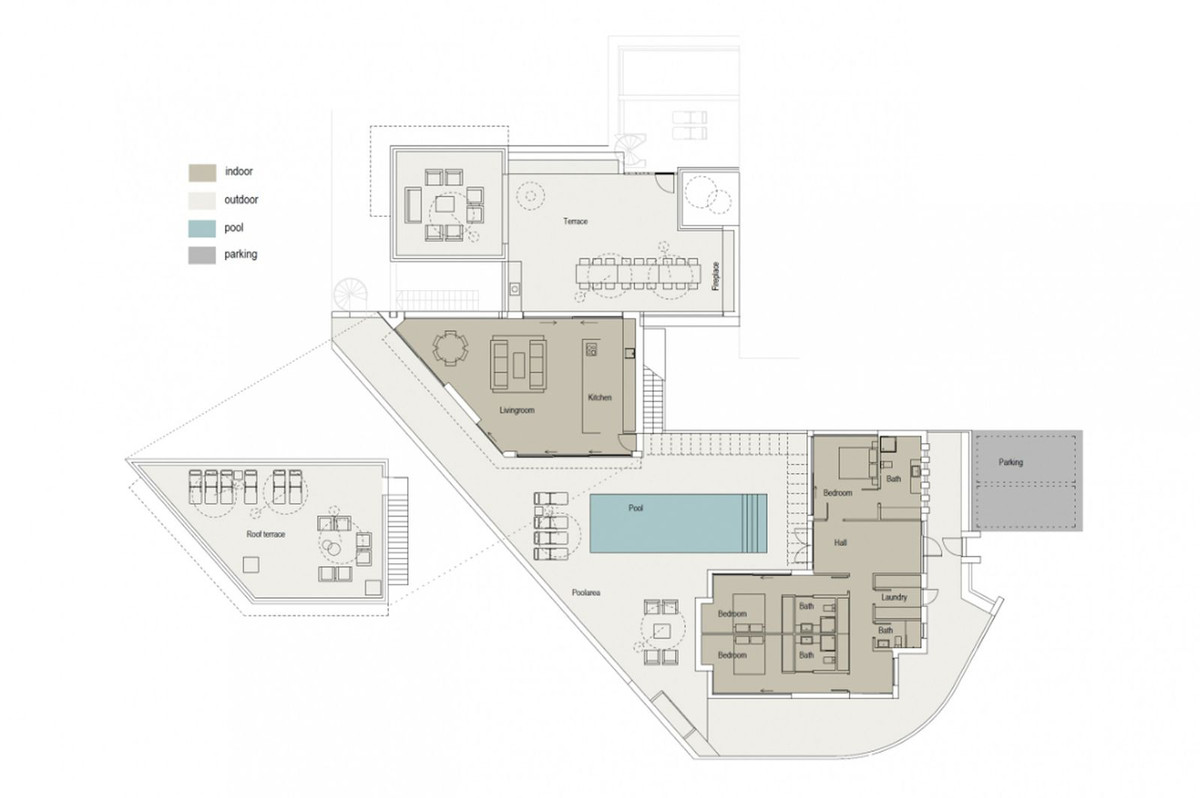
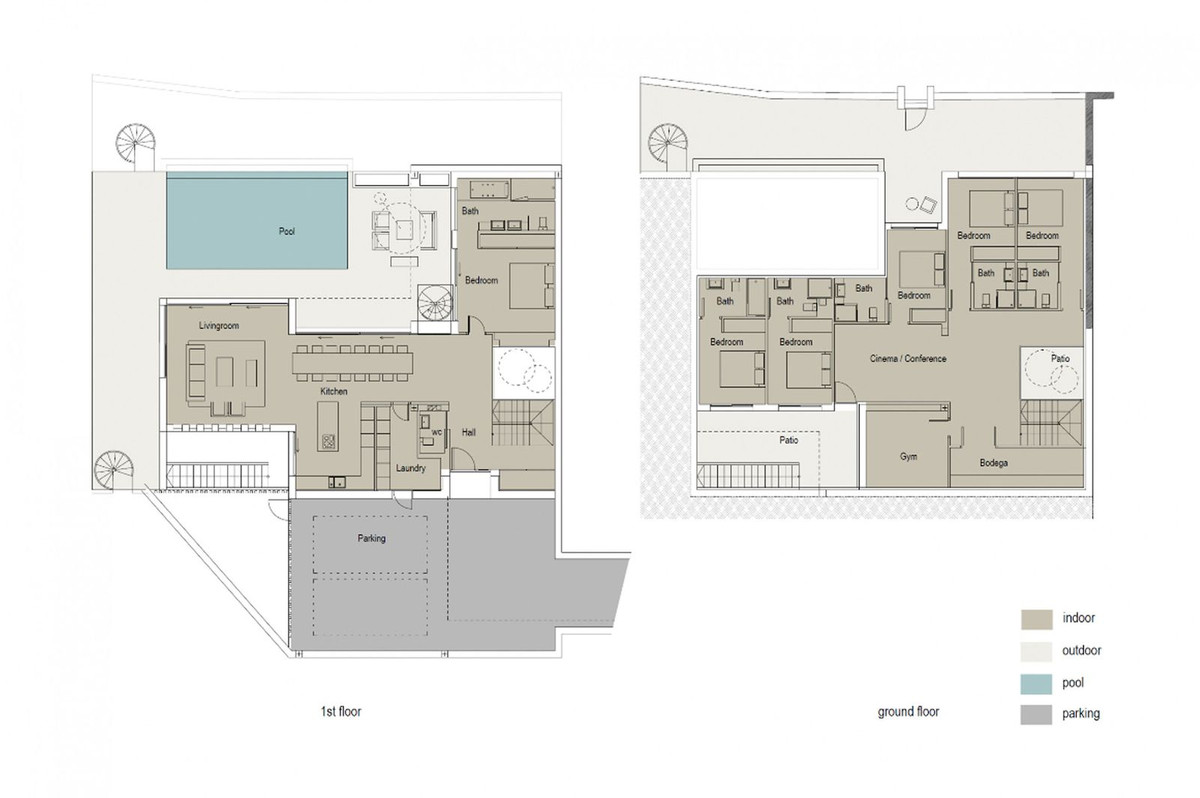
9 SOVRUMS LYXVILLA I SÖDER MED 2 UPPVÄRMDA PASSER, BIORUM, GYM OCH VINBODEGA NÄRA STRANDEN.

Denna unika samtida 9-rumsfastighet består av TVÅ SEPARAT ENHETER som ligger i anslutning till varandra på två angränsande tomter. Beläget i ett lyxigt, säkert gated community, bara 1,2 km (15 minuters promenad) från stranden, affärer och restauranger i Riviera del Sol och Calahonda. Denna nya utveckling av 12 låghus villor har byggts i en modern stil med mycket avancerade material.

Med en sammanlagd byggstorlek på 476 m2 består dessa två fastigheter av många lounger, två fullt utrustade moderna kök med öppen planlösning, två gästbadrum och två stora tvättstugor. Alla nio sovrum (tre i en fastighet och sex i den andra) har gott om inbyggda garderobsutrymmen och eget badrum med golvvärme. Nio av badrummen har duschkabin, handfat och toalett och 1 badrum har badkar och dusch. De flesta av sovrummen har en halvprivat uteplats och är även utrustade med en platt-TV.

Ägaren har nyligen installerat ett gym med toppmodern utrustning, en bekväm hemmabio och en vinbodega med temperaturkontrollsystem. Det finns ett Sonos hemmaljudsystem som ger utmärkt ljudkvalitet både inuti och utanför fastigheterna.

Högt i tak och stora värmebeständiga fönster gör att fastigheterna känns mycket rymliga och ljusa vilket möjliggör en sömlös integrering av inomhus- och utomhusboende. Tillsammans med de två 8 x 4 meter uppvärmda saltvattenspoolerna (med motström och elektrisk täckning) finns en generös 89 m2 terrass/veranda och 2 enorma taksolarier på 76 m2 och 141 m2 med glasräcke och imponerande 360 ​​graders utsikt. över havet och kusten. Den totala tomtstorleken är 977 m2.

De nuvarande ägarnas inredningsförmåga har förvandlat denna fastighet till ett fantastiskt och inbjudande utrymme, perfekt för det dagliga livet, som fritidshus eller fastighet med hög hyresinkomst. Alla inrednings- och exteriörmöbler ingår i det begärda priset.

Det finns gated täckt parkering för fyra fordon och ytterligare två öppna parkeringsplatser direkt framför fastigheterna.

Båda fastigheterna är genomgående utrustade med luftkonditionering i luftzonen för att säkerställa behaglig luftkvalitet och temperaturer året runt, 1 000 liter vattenreserv, vattenbehandlingssystem, UV-beständigt säkerhetsglas, larmsystem, gott om utrymme i garderoben, golvvärme i badrum, högkvalitativa golvplattor i stengods i porslin (interiör och exteriör), 2 gasolgrillar och porttelefon med video.

Riviera del Sol ligger på Costa del Sol i södra Spanien mitt emellan Marbella och Fuengirola. Det ligger bara några minuter från motorvägen AP7 och den nationella kustvägen A7 (tidigare N-340), vilket ger enkel tillgång till Malagas flygplats på 25 minuter och Marbella på 15 minuter. Riviera del Sol är ett blandat bostads- och semesterområde som erbjuder alla faciliteter och tjänster som behövs för att njuta av livet bekvämt.


Funktioner

Climate control

  • Luftkonditionering
  • Varm A / C
  • Kall A / C
  • Golvvärme badrum

Condition

  • Perfekt

Features

  • Täckt terrass
  • dresser-wardrobe
    Inbyggda garderober
  • bus-2
    Nära transport
  • Privat terrass
  • Takterass
  • WiFi
  • Gym
  • dresser-drawers-5
    Förrråd
  • home-improvement-12_1
    Tvättstuga
  • Eget badrum
  • Grillplats
  • Dubbelglas
  • Domotik
  • Nära kyrkan
  • Fiber

Furniture

  • Fullt möblerad

Garden

  • Privat trädgård
  • Lätt underhåll trädgård

Kitchen

  • Fullt utrustad
  • Matsal

Orientation

  • Söder
  • Sydväst
  • Väst

Parking

  • Garage
  • Täckt parkering
  • Öppen parkering
  • Mer än en parkering
  • Privat parkering

Pool

  • Privat pool
  • Uppvärmd pool

Security

  • Gated Complex
  • mobile-phone-blackberry-2
    Porttelefon
  • Larmsystem
  • saving-safe-1
    Safe

Setting

  • Nära till golf
  • Nära till affärer
  • Nära till havet
  • shanty-house-village-1
    Nära till stan
  • Urbanisation

Utilities

  • wall-socket
    Elektricitet
  • Drickbart vatten
  • Telefon

Views

  • Havsutsikt
  • Utsikt pool
  • Stadsutsikt

Beläget i

Prisvärdhet

Beräkna dina månatliga bolånebetalningar

Din beräknade månadsbetalning

Bli förkvalificerad

Inköpskostnader

Vår kostnadskalkylator ger en uppskattning av alla kostnader som är involverade i att köpa ett hus i Spanien. Använd dessa siffror endast som en riktlinje: de faktiska siffrorna kommer att variera beroende på fastighetens läge och vilken bank du väljer, bland andra faktorer. Till summan måste du lägga till dina bolånebetalningar och comisión de apertura om din bank debiterar det.

Totala utgifter

Du kanske gillar dessa fastigheter också