
3,043 €/m2
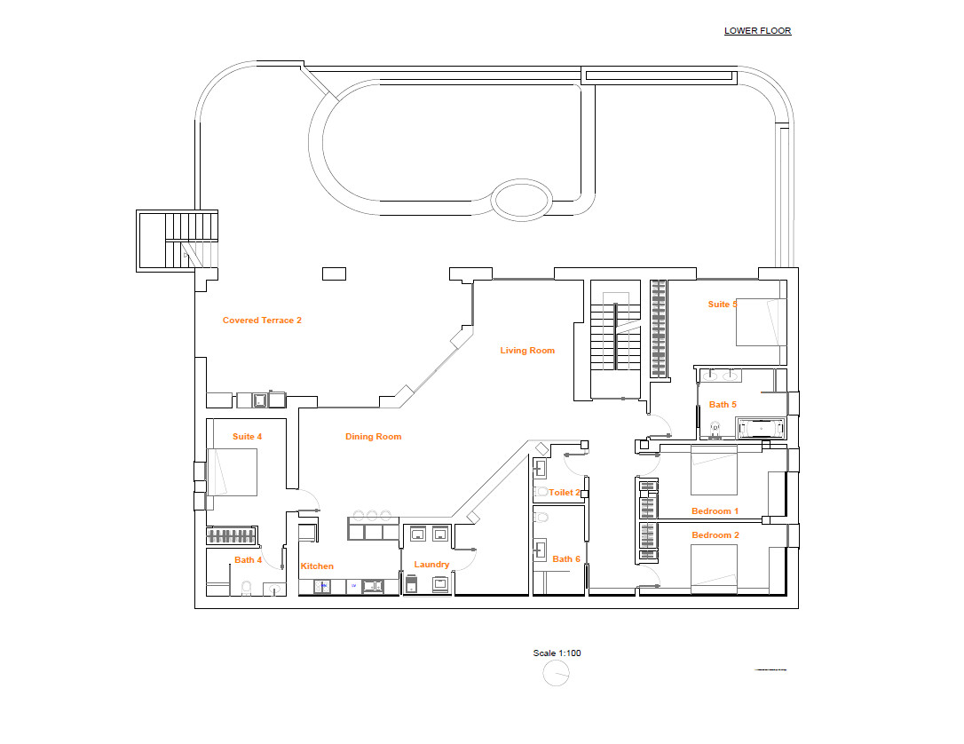
This luxury villa has been built on a large plot offering privacy, sea views and a good sun orientation. The impressive front door and the high beamed ceilings add a classy touch to the villa. On the main floor there is a large living/dining room, a glazed terrace, kitchen, three bedrooms, three bathrooms and a guest toilet. Downstairs you find another lage living/dining room, four bedrooms three bathrooms, a kitchen and laundry room. On the lower floor is the large covered terrace and the amazing infinity swimming pool with jacuzzi as well as a summer kitchen. For guests you find a separate house with one bedroom, a bathroom and a kitchenette. The villa has a large garage, marble floors with under floor heating and air-conditioning in all bedrooms as well as a small gym.
Beläget i
Prisvärdhet
Beräkna dina månatliga bolånebetalningar
Din beräknade månadsbetalning
Bli förkvalificeradInköpskostnader
Vår kostnadskalkylator ger en uppskattning av alla kostnader som är involverade i att köpa ett hus i Spanien. Använd dessa siffror endast som en riktlinje: de faktiska siffrorna kommer att variera beroende på fastighetens läge och vilken bank du väljer, bland andra faktorer. Till summan måste du lägga till dina bolånebetalningar och comisión de apertura om din bank debiterar det.