
740 €/m2
Fantastic Development Opportunity in the Heart of San Pedro Alcántara
We are pleased to offer for sale this attractive and fully licensed development project located in the vibrant town center of San Pedro Alcántara.
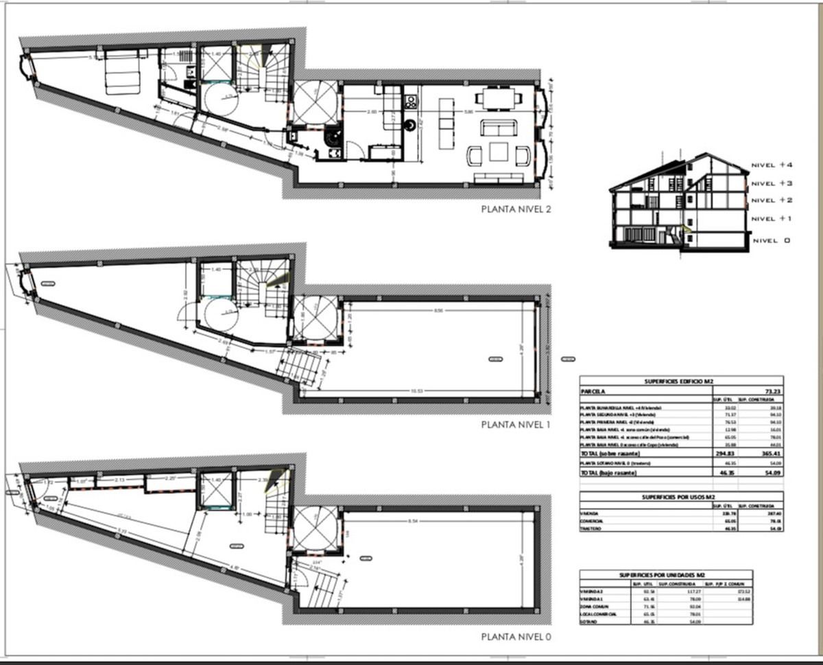
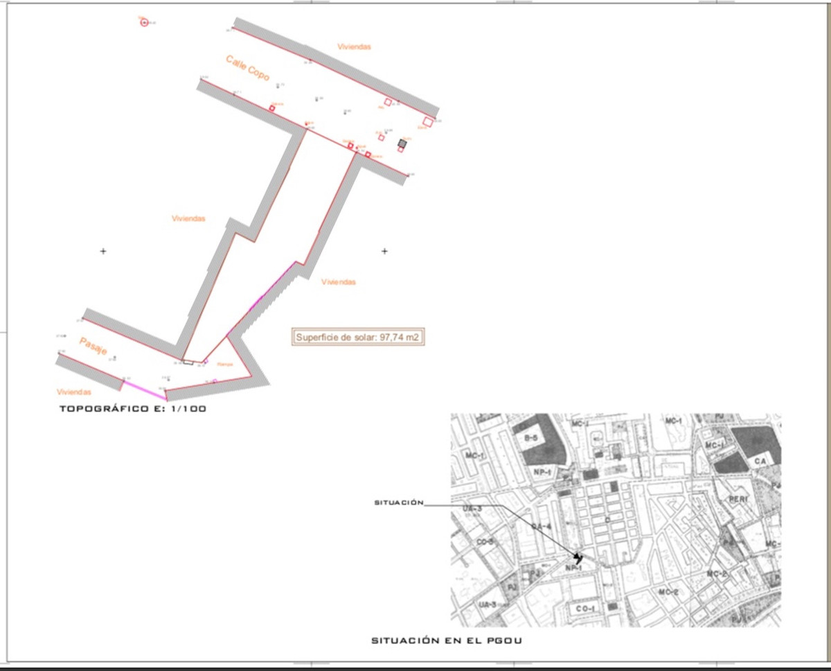
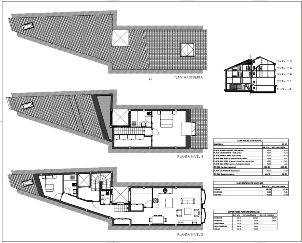
The plot measures 98 m² and comes with approved plans to construct a 3-storey building with a basement, totaling a built area of 365.41 m².
Project Details:
Ground Floor: Commercial unit of 78.01 m² with direct access to a terrace – ideal for retail or a café/restaurant.
Basement: 54.09 m², suitable for storage, technical room, or complementary use for the commercial space.
First Floor: Spacious 2-bedroom apartment of 78.09 m².
Second Floor & Attic: Stunning 3-bedroom duplex penthouse of 117.27 m² with a generous private terrace.
Common Areas (Staircase, Hallways, etc.): 92.04 m².
This is a rare opportunity to develop a centrally located, mixed-use building with great potential for both commercial and residential income. San Pedro Alcántara is a rapidly growing area, popular with both locals and tourists, just minutes from Marbella and Puerto Banús.
All licenses and planning permissions are in place – ready for immediate development.
Funktioner
Orientation
-
Sydöst
Setting
-
Stad
-
Nära till havet
-
Nära skolor
Views
-
Stadsutsikt
Beläget i
Prisvärdhet
Beräkna dina månatliga bolånebetalningar
Din beräknade månadsbetalning
Bli förkvalificeradInköpskostnader
Vår kostnadskalkylator ger en uppskattning av alla kostnader som är involverade i att köpa ett hus i Spanien. Använd dessa siffror endast som en riktlinje: de faktiska siffrorna kommer att variera beroende på fastighetens läge och vilken bank du väljer, bland andra faktorer. Till summan måste du lägga till dina bolånebetalningar och comisión de apertura om din bank debiterar det.