Radhus till salu i Marratxí

Property ID: MPG-915

€1,695,000

6,119 €/m2


277
5
beds
4
baths
378
plot

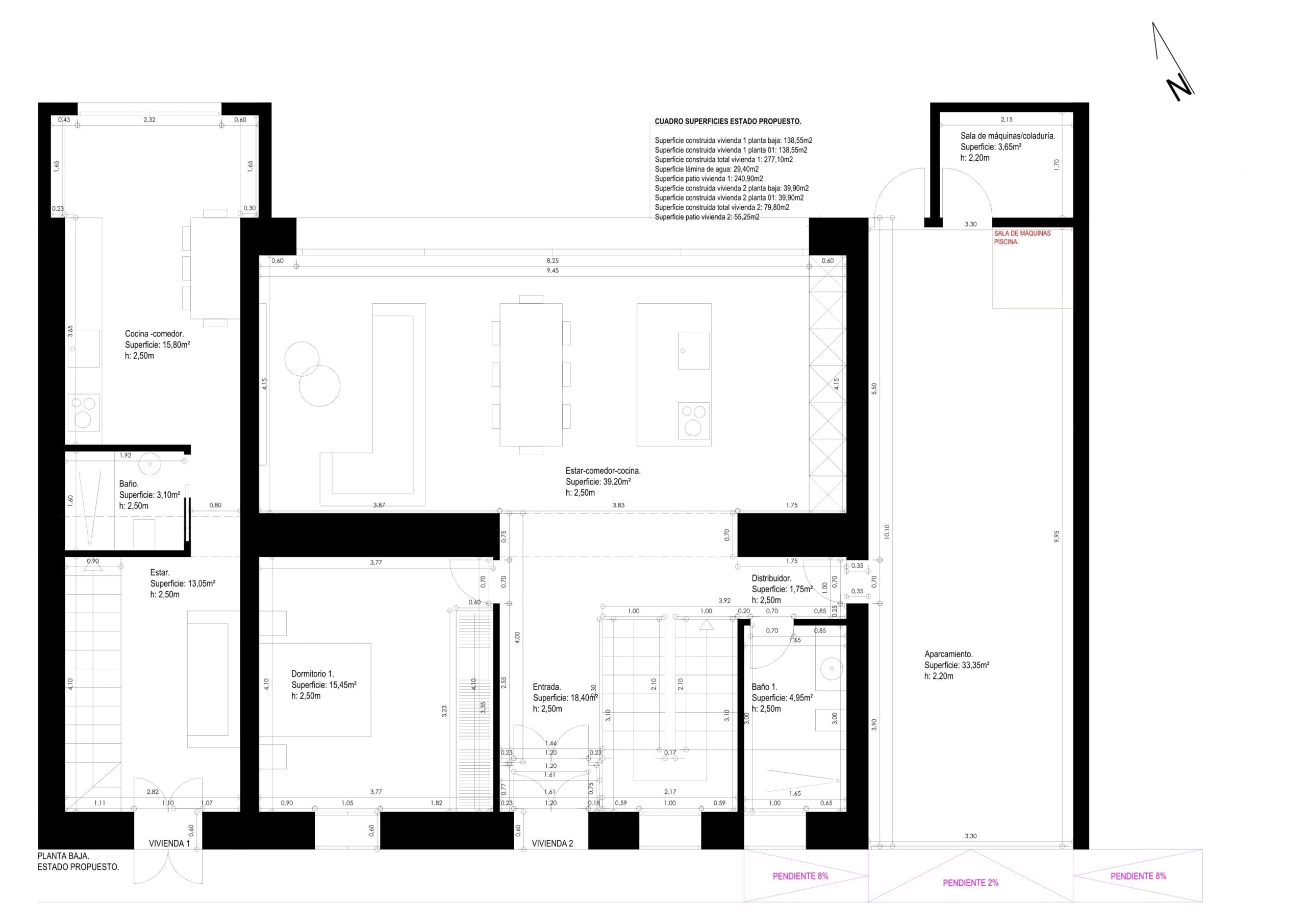
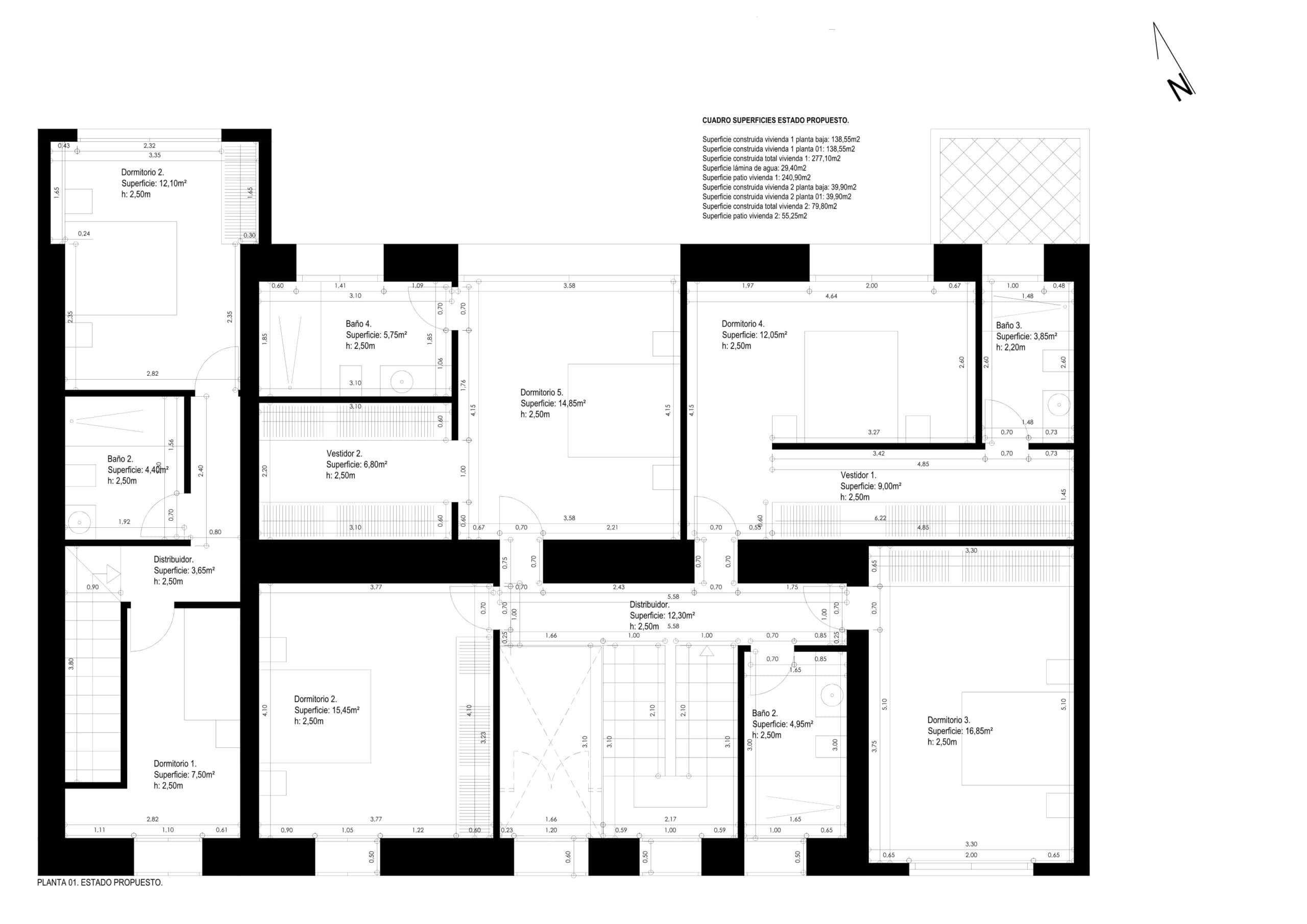
Nybyggd till salu i Sa Cabaneta med uteplats och pool. Detta hem är genomtänkt designat över två våningsplan och kombinerar elegant arkitektur med modern komfort. Bottenvåning: 138 m² boyta med direkt tillgång från entrén till dubbelgarage, maskinrum för poolen och installationer samt tvättstuga. Ett dubbelrum med gott om garderobsutrymme ligger direkt vid entrén. Ett gästbadrum med dusch är lättillgängligt från hallen. Därifrån öppnar sig ett stort öppet vardagsrum med skjutdörrar i full höjd som leder till den privata uteplatsen och poolen. Till höger finns ett specialdesignat kök med köksö, och matplatsen i mitten skiljer köket från vardagsrummet. Första våningen: Övervåningen på 138 m² rymmer fyra rymliga sovrum. Två av dem har eget badrum och walk-in-closet med utsikt mot uteplatsen och poolen. De andra två dubbelrummen vetter mot gatan och delas av ett familjebadrum, separerade av trappan. Uteplats: Den muromgärdade uteplatsen på 240 m² erbjuder gott om plats för att äta ute under sommaren samt solbada vid den 30 m² stora poolen, som ligger i bortre delen men syns tydligt från kök och vardagsrum – perfekt för barnfamiljer. Detta exklusiva hem har alla moderna bekvämligheter som hör till ett kvalitetsbygge. Passar även flerfamiljshushåll, där sovrummet på bottenvåningen kan användas som kontor. För mer information om nybygget till salu i Sa Cabaneta eller för att boka en visning, vänligen kontakta oss. Planritningar och materialbeskrivningar finns för nedladdning. Byggföretaget är välkänt på ön och har fler projekt som du också kan besöka om du vill se byggkvaliteten. Fastigheten ligger i Sa Cabaneta på Marratxi, Mallorca. Marratxi är en samling byar och stadsområden strax utanför Palma de Mallorca. Dessa inkluderar Pont d’Inca, Portol och Sa Cabaneta, som alla är populära bland dem som arbetar i Palma de Mallorca. Sa Cabaneta är ett litet samhälle som är en del av kommunen Marratxí i Raiguer-regionen på centrala Mallorca. Historiskt sett centralt för keramik- och keramikindustrin på Mallorca, tillsammans med de andra samhällena som är en del av kommunen Marratxi, Pòrtol, Pla de na Tesa och Pont d’Inca. Sa Cabaneta är nu en populär by och pendlingsort med sin blandning av modern bekvämlighet men också känslan av ett traditionellt bysamhälle. Majoriteten av invånarna arbetar i öns huvudstad Palma de Mallorca eller är internationella invånare som arbetar över hela Europa och värdesätter dess närhet till huvudstaden och flygplatsen.

Funktioner

Climate control

  • Luftkonditionering

Features

  • Eget badrum
  • dresser-wardrobe
    Inbyggda garderober
  • home-improvement-12_1
    Tvättstuga

Parking

  • Garage
  • Privat parkering

Pool

  • Private pool

Setting

  • Nära till affärer
  • Nära skolor

Beläget i

Prisvärdhet

Beräkna dina månatliga bolånebetalningar

Din beräknade månadsbetalning

Bli förkvalificerad

Inköpskostnader

Vår kostnadskalkylator ger en uppskattning av alla kostnader som är involverade i att köpa ett hus i Spanien. Använd dessa siffror endast som en riktlinje: de faktiska siffrorna kommer att variera beroende på fastighetens läge och vilken bank du väljer, bland andra faktorer. Till summan måste du lägga till dina bolånebetalningar och comisión de apertura om din bank debiterar det.

Totala utgifter

Du kanske gillar dessa fastigheter också