Finca - Cortijo till salu i Inca

Property ID: MPG-803

€3,995,000

13,776 €/m2


290
4
beds
4
baths
19696
plot

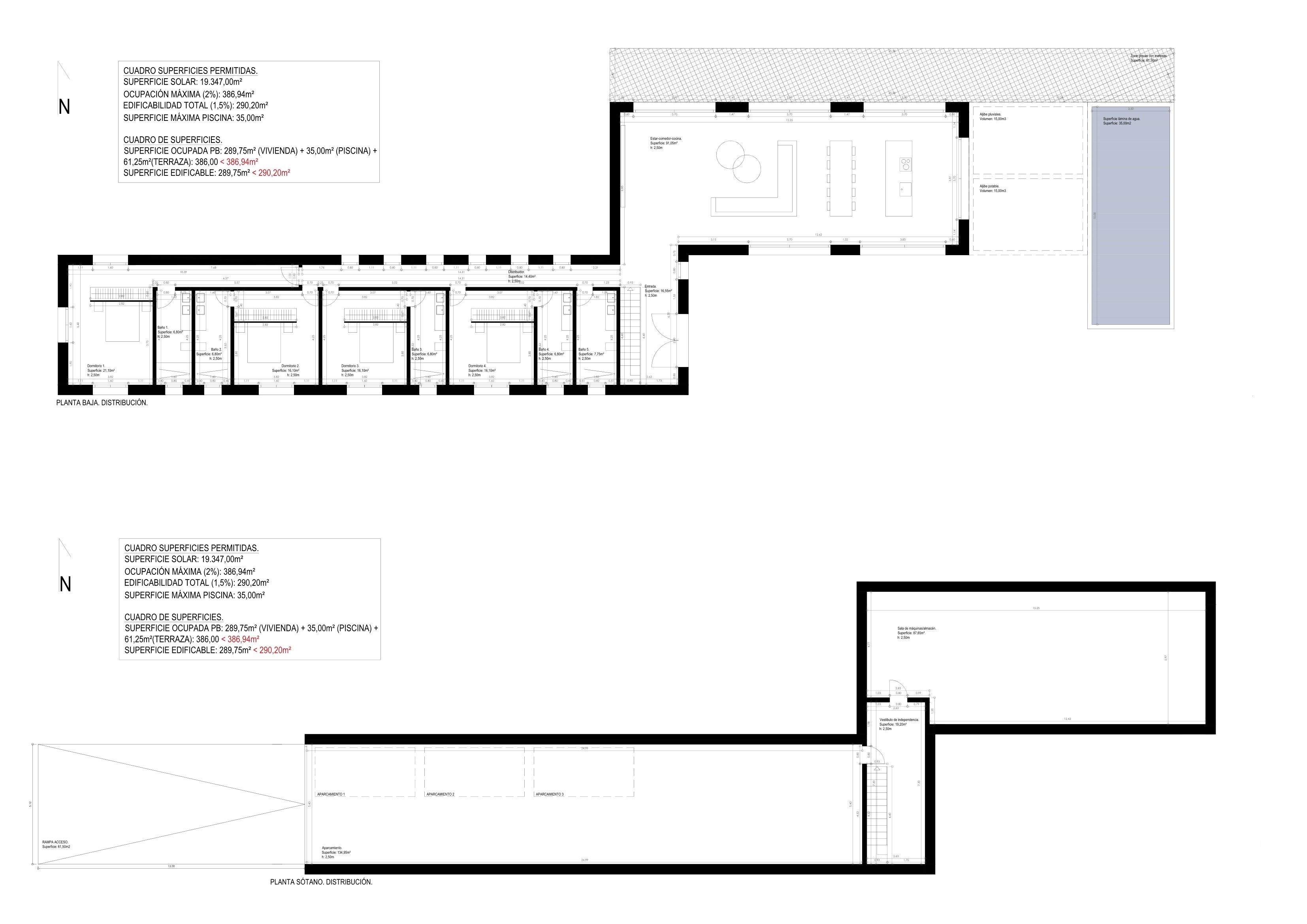
Godkänt Finca-projekt till salu i Costitx Mallorca. Inbäddat på Mallorcas vackra landsbygd erbjuder denna imponerande tomt på 19 696 m² en unik chans för dem som vill skapa sin egen fridfulla tillflyktsort. Det är bara en kort bilresa från den charmiga byn Jornets och bekvämt beläget mellan Inca och byn Costitx. Med ett bygglov redan beviljat för en enplansfinca är denna tomt ännu mer tilltalande, vilket möjliggör ett snabbt byggande så att du kan starta ditt drömprojekt utan några förseningar. De godkända planerna inkluderar ett hus med fyra sovrum och fyra badrum med en gästtoalett, ett rymligt kök med öppen planlösning, matsal och vardagsrum med utsikt över en 35 m² stor pool. Dessutom finns ett generöst 134 m² källargarage med plats för tre bilar. Den fridfulla miljön erbjuder fantastisk utsikt över Mallorcas landskap och avlägsna berg, men ändå är det bara åtta minuter från transportförbindelser i Inca och mindre än trettio minuter från Palma de Mallorca och öns internationella flygplats. Om du vill ha mer information om Son Bordils finca-projekt vänligen kontakta oss, vi kan ge dig planer och detaljer för projektet. Projektet och tomten kan köpas för 995 000 € Costitx på Pla de Mallorca. Costitx är en liten kommun i centrala Mallorca, känd för tjurhuvudena från bronsåldern, kända som Bous de Costitx, vilka upptäcktes vid den talayotiska helgedomen Son Corró nära byn. Originalen finns utställda på Museu Arqueològic Nacional d’Espanya i Madrid, och byn har kopior utställda i kulturcentret. Observatorio Astronómico de Mallorca ligger också strax söder om byn, vilket gynnar byns läge mitt på ön, landskapets höjd och de relativt låga ljusnivåerna.

Funktioner

Climate control

  • Luftkonditionering

Features

  • Eget badrum

Parking

  • Privat parkering
  • Garage

Pool

  • Private pool

Beläget i

Prisvärdhet

Beräkna dina månatliga bolånebetalningar

Din beräknade månadsbetalning

Bli förkvalificerad

Inköpskostnader

Vår kostnadskalkylator ger en uppskattning av alla kostnader som är involverade i att köpa ett hus i Spanien. Använd dessa siffror endast som en riktlinje: de faktiska siffrorna kommer att variera beroende på fastighetens läge och vilken bank du väljer, bland andra faktorer. Till summan måste du lägga till dina bolånebetalningar och comisión de apertura om din bank debiterar det.

Totala utgifter

Du kanske gillar dessa fastigheter också