Finca - Cortijo till salu i Callosa de Segura

Property ID: MLC-MLSC8060173

€260,000

2,600 €/m2


100
1
beds
1
baths
46816
plot

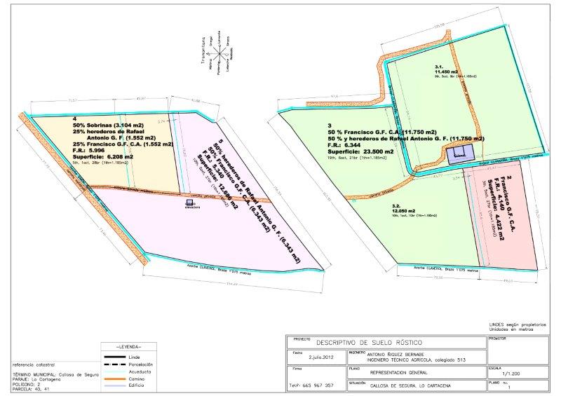
Rustic property of 46,816 m2 (the minimum to build a legal home is 10,000 m2) with a house to reform and more than enough water supply to irrigate it all.Located 3 km from the center of Callosa de Segura and Cox, with all services.Recreational farm, to live and or spend seasonsAgrobusiness operation. With provision of water to plant the typical crops of the garden: citrus fruits, vegetables, greens...House - Rural hotel: By reforming the house, a very profitable business could be carried out, taking into account, above all, that the pandemic has modified the preferences of tourists for this type of accommodation in the countryside. The constructed area could be expanded because a buildable area of 2% of the land is allowed (almost 1000 m2) and there are only 100 m2 in the existing house.A few minutes from the Callosa mountain, with hiking trails, trekking, its via ferrata, etc. Also near the monumental historic center of the city of Orihuela.25 minutes from the beaches (Guardamar, La Mata, Orihuela Costa) and less than an hour from Alicante airport.It has 2 accesses by car and is close to other houses.Excellent views of the mountains and the orchard landscape of Vega Baja.

Funktioner

Setting

  • Nära till havet
  • Nära småbåtshamn

Beläget i

Prisvärdhet

Beräkna dina månatliga bolånebetalningar

Din beräknade månadsbetalning

Bli förkvalificerad

Inköpskostnader

Vår kostnadskalkylator ger en uppskattning av alla kostnader som är involverade i att köpa ett hus i Spanien. Använd dessa siffror endast som en riktlinje: de faktiska siffrorna kommer att variera beroende på fastighetens läge och vilken bank du väljer, bland andra faktorer. Till summan måste du lägga till dina bolånebetalningar och comisión de apertura om din bank debiterar det.

Totala utgifter

Du kanske gillar dessa fastigheter också