Fristående villa till salu i Begur

Property ID: DCB-BRA-02665/9410

€2,400,000

€/m2


0
5
beds
4
baths
0
plot

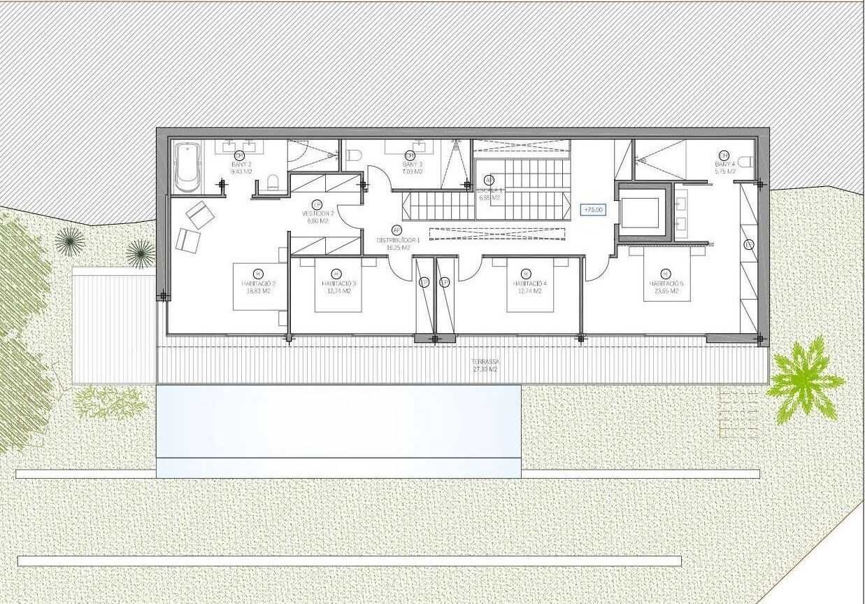
Exclusive project for the construction of a spectacular villa located on the seafront, with infinity pool, stunning sea views and direct access to the sea. The plot, of 955 m² according to the land registry, enjoys a privileged location in Cap de Begur, 2 km from the picturesque Cala de Sa Tuna and 3 km from the centre of Begur. ;The project is distributed over 3 levels:;At street level we find spacious garage with entrance hall and access to the lift that connects the 3 floors.;On the middle floor there are 4 double bedrooms with access to the terrace, two of them en suite with dressing room, and a complete bathroom. From the 4 bedrooms you can enjoy impressive sea views and have access to the large and sunny terrace.;On the lower and main floor there is a large and sunny living-dining room with open plan kitchen with spectacular views, a complete bathroom, a double bedroom, a laundry room and a machine room.;Large windows give access to the fantastic outdoor area with a 40 m² infinity pool, terraces and the extraordinary views that this exclusive villa enjoys. ;The villa will be finished to the highest quality standards as well as the highest specifications for a property of these characteristics. ;Option to buy the land with the current project and building licence in place, please consult price. ;Area: 350 m2 Land area: 995 m2 Orientation: East;purchase expenses: 10% VAT + 1'5% taxes + notary + registry;[IW]

Funktioner

Features

  • lift
    Hiss
  • home-improvement-12_1
    Tvättstuga

Parking

  • Garage

Setting

  • Nära till havet

Views

  • Havsutsikt

Beläget i

Prisvärdhet

Beräkna dina månatliga bolånebetalningar

Din beräknade månadsbetalning

Bli förkvalificerad

Inköpskostnader

Vår kostnadskalkylator ger en uppskattning av alla kostnader som är involverade i att köpa ett hus i Spanien. Använd dessa siffror endast som en riktlinje: de faktiska siffrorna kommer att variera beroende på fastighetens läge och vilken bank du väljer, bland andra faktorer. Till summan måste du lägga till dina bolånebetalningar och comisión de apertura om din bank debiterar det.

Totala utgifter

Du kanske gillar dessa fastigheter också