Tomt till salu i Benissa

Property ID: CPS-CBD1651

€315,000

€/m2


0
0
beds
0
baths
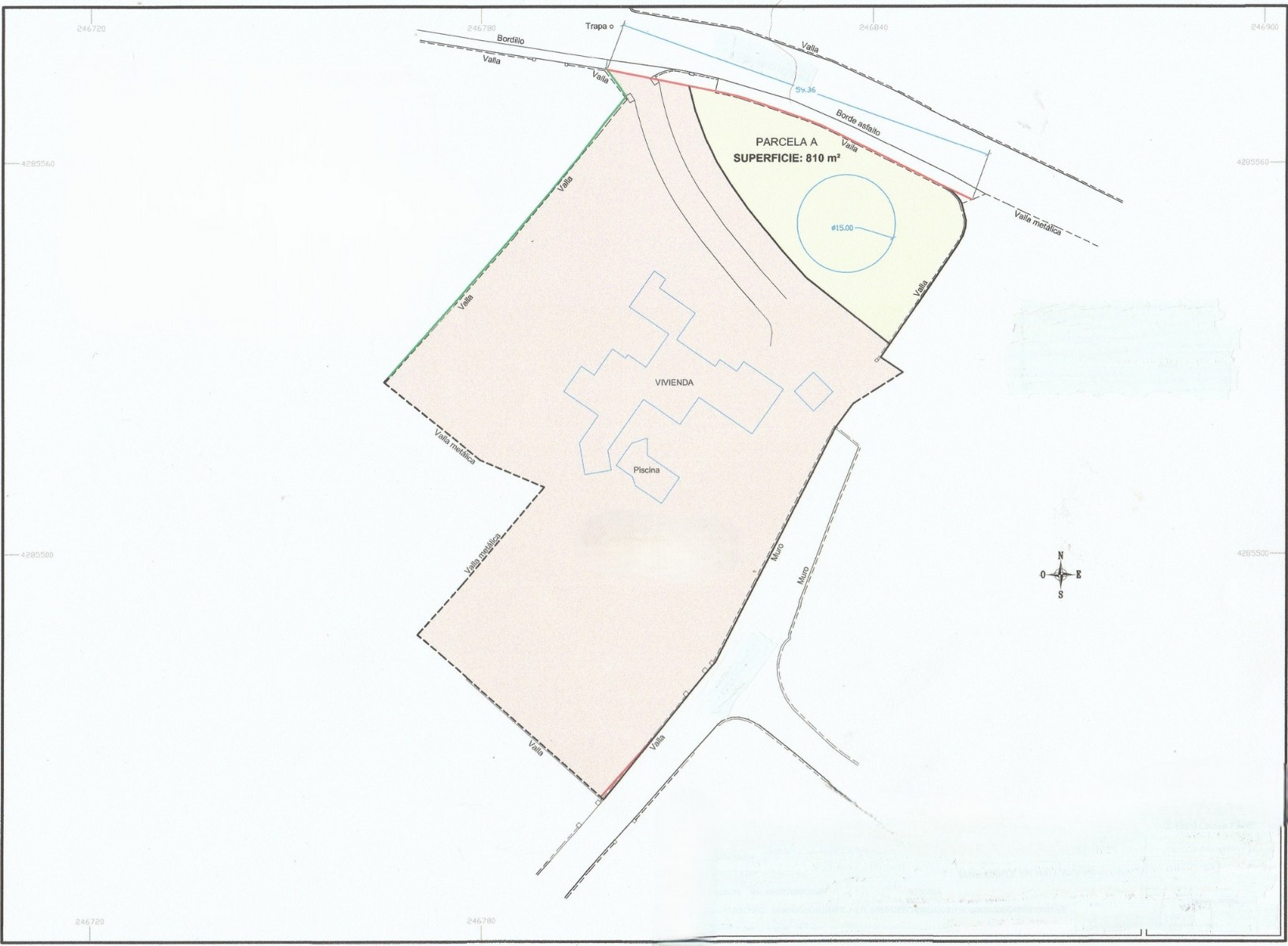
810
plot

This flat plot with lovely open views has walls on two sides and is presently fenced on the other two sides. The plot is only a short drive to the beach and supermarket and is conveniently situated between the towns of Moraira and Calpe. Construction will be straight forward, with water and electricity already in the road, deliveries from the road will be easy and of course building on a flat plot is a luxury in our area. Construction of 20% of the plot size will be possible.- Distances:- Supermarket 1.3km- Beach and restaurants 1.9km- Moraira 6.4km- Calpe 6.7km- Motorway access in Benissa 8km- For further information please do not hesitate to contact us.

Funktioner

Setting

  • Nära till havet
  • shanty-house-village-1
    Nära till stan

Beläget i

Prisvärdhet

Beräkna dina månatliga bolånebetalningar

Din beräknade månadsbetalning

Bli förkvalificerad

Inköpskostnader

Vår kostnadskalkylator ger en uppskattning av alla kostnader som är involverade i att köpa ett hus i Spanien. Använd dessa siffror endast som en riktlinje: de faktiska siffrorna kommer att variera beroende på fastighetens läge och vilken bank du väljer, bland andra faktorer. Till summan måste du lägga till dina bolånebetalningar och comisión de apertura om din bank debiterar det.

Totala utgifter

Du kanske gillar dessa fastigheter också