Radhus till salu i Competa

Property ID: COP-TH907

€138,000

476 €/m2


290
3
beds
2
baths
0
plot

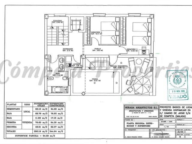
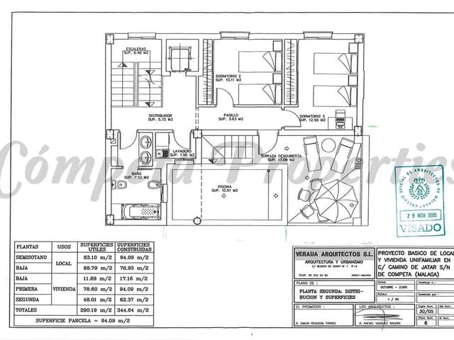
This townhouse in Spain is situated on one of the streets of the upper part of the village of Cómpeta with very good access and all of the local amenities nearby. This property needs to be completely finished internally and externally. At present this property has a project which has already been drawn out on how the property could be laid out. The idea is that it should have 290 m2 living space and 344 m2 built space. The interior accommodation of the property according to the original project is divided into three floors. These three floors comprise a basement, a garage, a covered terrace, 2 double bedrooms, 2 family bathrooms, a living-dining room, a kitchen, a utility room, a roof terrace and a plunge pool. Please see the plans of the original project on our website. However, the second floor hasn´t been built yet, so you could re-arrange the whole distribution of the property to your own taste and re-design it. This property is a perfect opportunity where one can put their imagination to the test to create their very own dream home in their own style. Water and electricity can easily be connected.

Funktioner

Features

  • home-improvement-12_1
    Tvättstuga

Parking

  • Garage

Setting

  • shanty-house-village-1
    Nära till stan
  • Nära småbåtshamn

Beläget i

Prisvärdhet

Beräkna dina månatliga bolånebetalningar

Din beräknade månadsbetalning

Bli förkvalificerad

Inköpskostnader

Vår kostnadskalkylator ger en uppskattning av alla kostnader som är involverade i att köpa ett hus i Spanien. Använd dessa siffror endast som en riktlinje: de faktiska siffrorna kommer att variera beroende på fastighetens läge och vilken bank du väljer, bland andra faktorer. Till summan måste du lägga till dina bolånebetalningar och comisión de apertura om din bank debiterar det.

Totala utgifter

Du kanske gillar dessa fastigheter också